Купить дом на улице Полевая в Рязанской области
Россия, Рязанская область, Рыбновский муниципальный округ, деревня Зеленинские Дворики, Полевая улица
116 м²
Площадь дома
8.2 сот
Площадь участка
Газобетонный блок
Материал постройки
1
Этажей
Описание
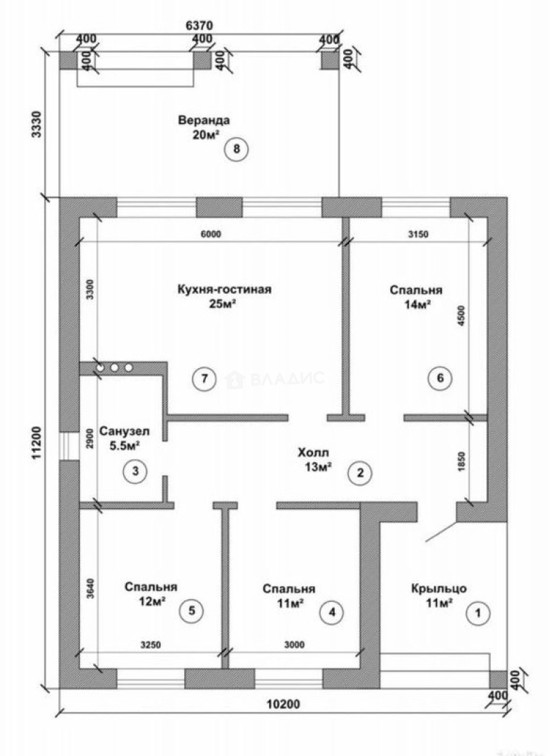
Дом построен в 2025 году из газобетонных блоков и облицован кирпичом, перекрытия деревянные, кровля из мягкой черепицы. Высота потолков — 3 метра, общая площадь — 116 квадратных метров. Дом подходит для круглогодичного проживания: подведены все коммуникации (водоснабжение из скважины, газ, канализация, электричество), отопление от индивидуального котла.
В доме три комнаты (11, 12 и 14 квадратных метров), просторная кухня (25 квадратных метров) и совмещённый санузел. Ремонт в состоянии white box, что позволит новым владельцам воплотить свои дизайнерские идеи.
Участок площадью 8,2 соток имеет статус индивидуального жилищного строительства, подъезд к участку — грунтовка.
Деревня Зеленинские Дворики расположена всего в 10 километрах от города, что обеспечивает удобную транспортную доступность.
Не упустите возможность стать владельцем этого прекрасного дома! Позвоните нам прямо сейчас, чтобы узнать больше.
Мы гарантируем безопасную сделку и юридическую поддержку нашим клиентам. Поможем одобрить ипотеку с сниженной ставкой.
О доме
Год постройки
2025
Этажей в доме
1
Общая площадь
116 м²
Жилая площадь
37 м²
Площадь кухни
25 м²
Площадь комнат
11+12+14 м²
Материал постройки
Газобетонный блок
Материал перекрытий
Деревянные
Материал кровли
Мягкая черепица
Высота потолков
3 м
Об участке
Площадь участка
8.2 сот.
Статус участка
Индивидуальное жилищное строительство
Электричество
Есть
Газ
Есть
Водоснабжение
Есть
Канализация
Есть
Без благоустройства участка
Есть
Подъезд к участку
Грунтовка
Расположение
Россия, Рязанская область, Рыбновский муниципальный округ, деревня Зеленинские Дворики, Полевая улица
Ипотечный калькулятор
Заполните 1 анкету — получите предложения от десятков банков на специальных условиях
Программа ипотеки
Стоимость жилья, ₽
Первый взнос, ₽
Срок кредита
от 5.75%
Ставка
от 46 554 ₽
Платеж в месяц
Расчёт носит информационный характер и не является публичной офертой
Предложите свою цену
7 400 000 ₽
63 793 ₽/м²






























