Продается 2-комн. квартира, 61.72 м²
Россия, Рязанский район, Дядьковское сельское поселение, село Дядьково, ЖК Огни
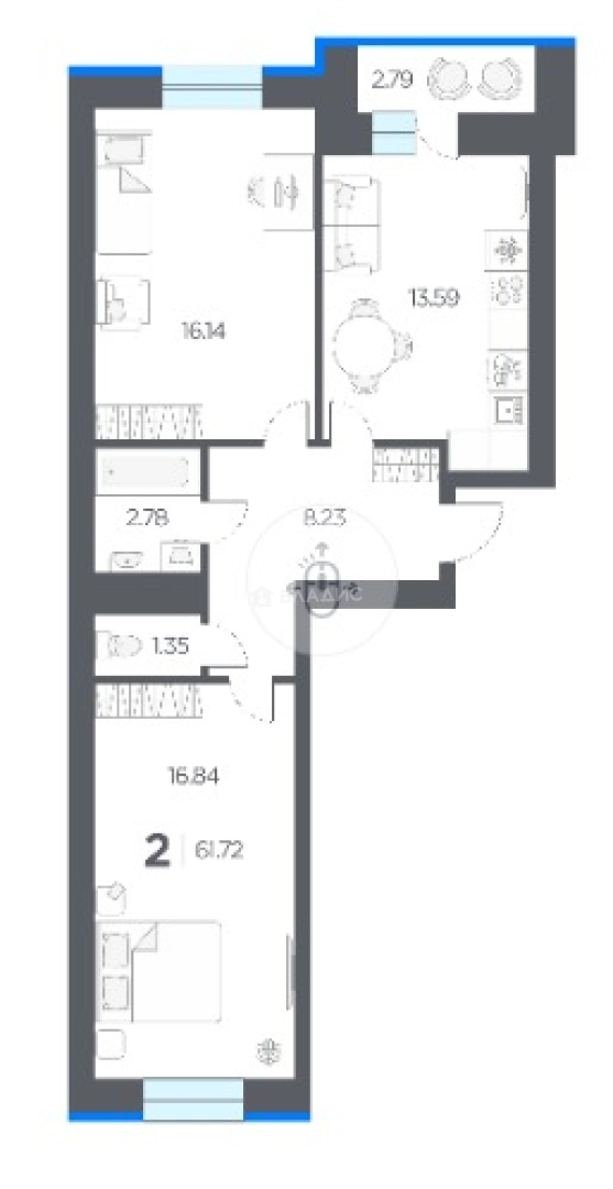
61.72 м²
Общая площадь
32.98 м²
Жилая площадь
13.59 м²
Площадь кухни
6 из 10
Этаж
Описание
Ипотека от 3,5%. Ключи в 2026 году!!!
- Малоэтажный кирпичный дом в зелёном районе города.
- Сад и школа рядом, что удобно для семей с детьми.
- Индивидуальное отопление, которое позволяет экономить и контролировать комфорт.
- Общая площадь 61,72 м², просторная квартира для семьи.
- Возможность выбора варианта с отделкой или без неё, что даёт свободу в оформлении интерьера.
- Профессиональная юридическая поддержка на каждом этапе сделки.
- Помощь в одобрении ипотеки, минимизация рисков отказа банка.
Это предложение идеально подойдёт молодым семьям, которые ценят уют, комфорт и перспективу долгосрочного проживания в экологически чистом месте с развитой инфраструктурой.
Особенно выгодно оно становится благодаря условиям семейной ипотеки, позволяющим существенно снизить финансовую нагрузку.
О квартире
Общая площадь
61.72 м²
Жилая площадь
32.98 м²
Площадь кухни
13.59 м²
Площадь комнат
16,14+16,84 м²
Высота потолков
2.75 м
Подъезд
1
Этаж
6
Расположение квартиры
не угловая
Окна выходят
Во двор
Раздельных санузлов
1
О доме
Год постройки
2026
Этажность
10
Количество подъездов
6
Материал постройки
Кирпичный
Материал перекрытий
Ж/б плиты
Отопление
Индивидуальный котел
Пассажирских лифтов
1
Грузовых лифтов
1
Парковка
Наземная
Огороженная территория
Да
Расположение
Россия, Рязанский район, Дядьковское сельское поселение, село Дядьково, ЖК Огни
Ипотечный калькулятор
Заполните 1 анкету — получите предложения от десятков банков на специальных условиях
Программа ипотеки
Стоимость жилья, ₽
Первый взнос, ₽
Срок кредита
от 5.75%
Ставка
от 39 606 ₽
Платеж в месяц
Расчёт носит информационный характер и не является публичной офертой
Похожие объекты


2-комн. квартира, 57,6 м², 7/18 эт.


2-комн. квартира, 57,6 м², 11/18 эт.


2-комн. квартира, 57,6 м², 15/18 эт.


2-комн. квартира, 57,6 м², 2/18 эт.
6 295 440 ₽
102 000 ₽/м²








