Продается 2-комн. квартира, 51.5 м²
Россия, Рязанский муниципальный округ, село Дядьково, улица Связи, 18
51.5 м²
Общая площадь
31 м²
Жилая площадь
11 м²
Площадь кухни
4 из 5
Этаж
Описание
Продаётся компактная, функциональная и уютная 2 комнатная квартира.
Кирпичный дом 2018 года постройки, индивидуальное отопление, а также сниженные тарифы на коммунальные услуги помогут существенно сэкономить на ежемесячных платежах.
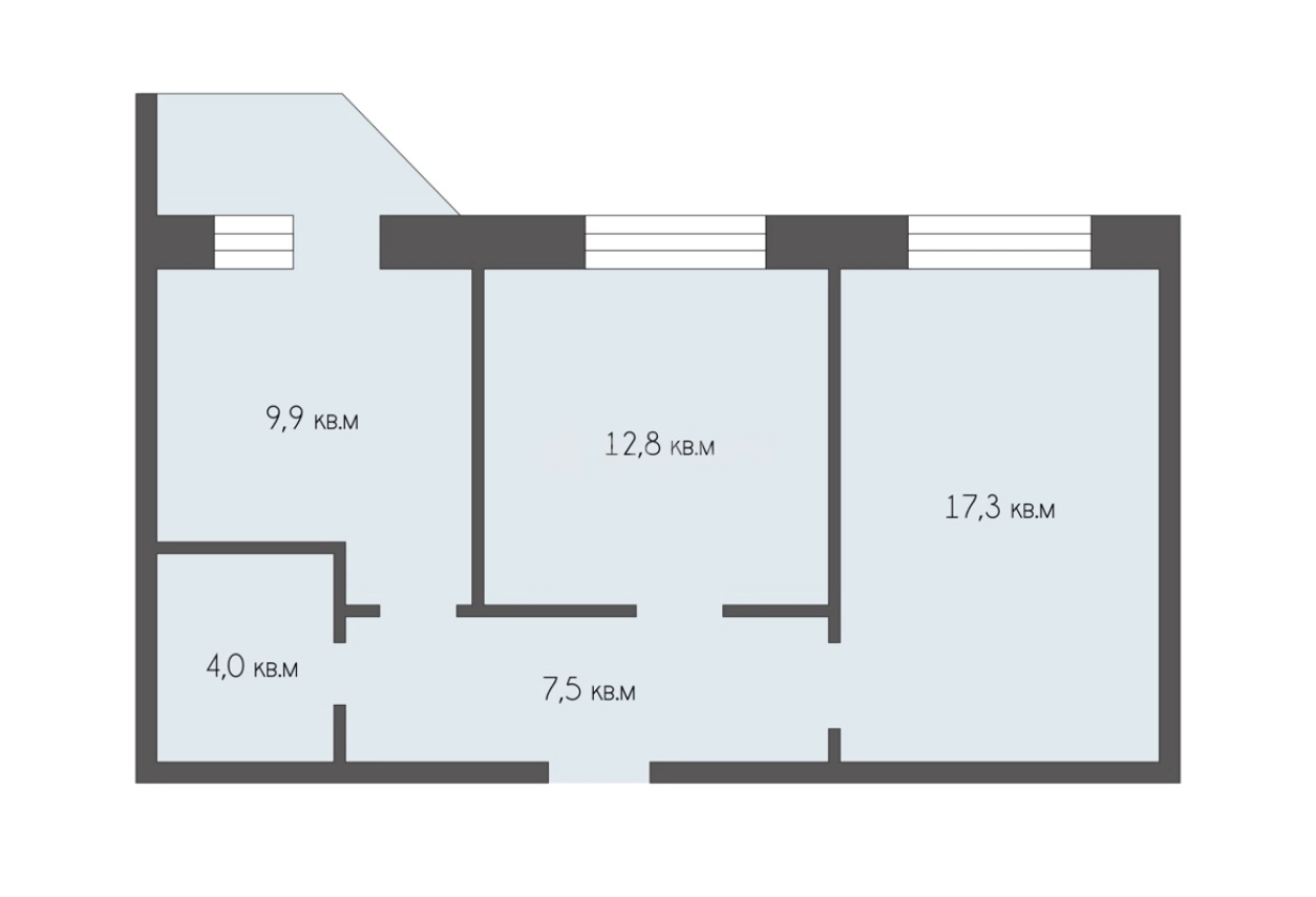
Классическая планировка позволит вам грамотно использовать внутреннее пространство: комнаты 13 кв. м., и 18 кв.м., кухня хорошей прямоугольной формы с выходом на балкон 10 кв. м., просторный санузел 4 кв.м. и мечта любого - отдельная просторная гардеробная 4.кв.м.
В квартире косметический ремонт, который позволяет оперативно заехать и жить без больших вложений.
В пешей доступности все необходимое: магазины, аптеки, остановки общественного транспорта, два детских сада. Школьный автобус возит детей в новую современную школу, 7 минут до гипермаркета Глобус и Леруа Мерлен.
При этом через дорогу лес для прогулок, рядом Дядьковский затон.
Один взрослый собственник, полная цена в договоре.
Прямая продажа.
Оперативный выход на сделку.
Звоните, все подробности по телефону и приходите на просмотр, чтобы по достоинству оценить эту квартиру!
О квартире
Общая площадь
51.5 м²
Жилая площадь
31 м²
Площадь кухни
11 м²
Подъезд
3
Этаж
4
Расположение квартиры
не угловая
Окна выходят
На улицу
Совмещенных санузлов
1
Мебель
Да
Ремонт
Косметический
О доме
Год постройки
2018
Этажность
5
Количество подъездов
3
Материал постройки
Кирпичный
Материал перекрытий
Ж/б плиты
Отопление
Индивидуальный котел
Парковка
Наземная
Расположение
Россия, Рязанский муниципальный округ, село Дядьково, улица Связи, 18
Ипотечный калькулятор
Заполните 1 анкету — получите предложения от десятков банков на специальных условиях
Программа ипотеки
Стоимость жилья, ₽
Первый взнос, ₽
Срок кредита
от 5.75%
Ставка
от 31 450 ₽
Платеж в месяц
Расчёт носит информационный характер и не является публичной офертой
Предложите свою цену
4 999 000 ₽
97 068 ₽/м²































