Продается 3-комн. квартира, 55 м²
Россия, Рязанская область, Рыбное, Тепловозная улица, 11/2
55 м²
Общая площадь
37 м²
Жилая площадь
8.5 м²
Площадь кухни
2 из 2
Этаж
Описание
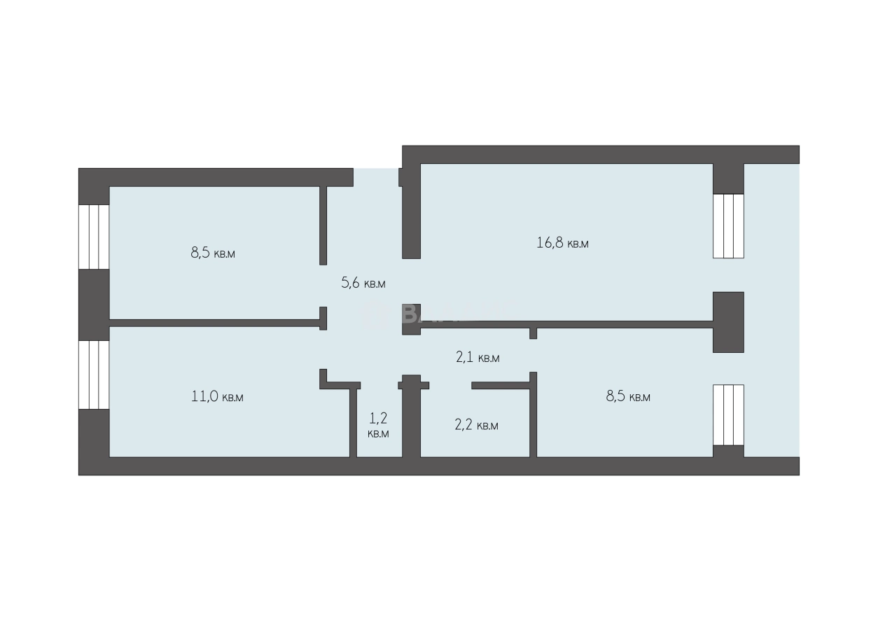
Общая площадь квартиры составляет 55 кв. м, из которых 37 кв. м — жилая площадь. Кухня площадью 8,5 кв. м станет местом для воплощения кулинарных фантазий. Все комнаты изолированы, окна выходят на 2 стороны дома. Есть просторный шестиметровый балкон на 2 окна.
Наземная парковка обеспечит удобное размещение автомобиля. Раздельный санузел — это практичность и удобство для всех членов семьи.
Квартира без отделки, что даёт возможность новому владельцу реализовать свои дизайнерские идеи и создать уютное пространство по своему вкусу. Ремонт уже начат. Залиты полы на кухне (теплый пол), установлен новый двухконтурный котел, начали делать разводку электричества, заменили несколько окон и батареи.
Не упустите шанс стать владельцем этой квартиры! Звоните нам прямо сейчас, чтобы узнать больше и записаться на просмотр.
Мы гарантируем безопасную сделку и юридическую поддержку нашим Клиентам. Поможем одобрить ипотеку с сниженной ставкой.
Разумный торг.
О квартире
Общая площадь
55 м²
Жилая площадь
37 м²
Площадь кухни
8.5 м²
Площадь комнат
17+9+11 м²
Подъезд
1
Этаж
2
Расположение квартиры
не угловая
Окна выходят
На улицу, Во двор
Раздельных санузлов
1
Ремонт
Без отделки
О доме
Год постройки
1988
Этажность
2
Количество подъездов
2
Материал постройки
Кирпичный
Материал перекрытий
Ж/б плиты
Отопление
Индивидуальный котел
Парковка
Наземная
Расположение
Россия, Рязанская область, Рыбное, Тепловозная улица, 11/2
Ипотечный калькулятор
Заполните 1 анкету — получите предложения от десятков банков на специальных условиях
Программа ипотеки
Стоимость жилья, ₽
Первый взнос, ₽
Срок кредита
от 5.75%
Ставка
от 17 615 ₽
Платеж в месяц
Расчёт носит информационный характер и не является публичной офертой
Предложите свою цену
2 800 000 ₽
50 909 ₽/м²














































