Купить дом в Сахалинской области
Россия, Сахалинская область, Анивский городской округ, село Мицулёвка, жилой комплекс Олимпия
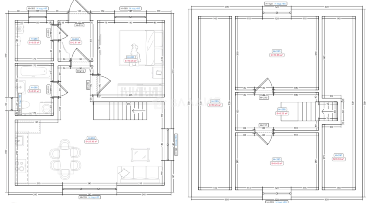
70 м²
Площадь дома
6 сот
Площадь участка
Блочный
Материал постройки
2
Этажей
Описание
Поселок находится в экологически чистом районе, рядом с эко-фермой, что создает отличные условия для семейных прогулок. Из окон открывается прекрасный вид, а автобусная остановка находится всего в 5 минутах от дома. Территория поселка огорожена, и доступ к ней имеют только жители.
Основные характеристики дома:
- Кровля: металлочерепица
- Стены: газоблок D500 (300-200 мм)
- Фундамент: железобетонная плита
- Фасад: вентилируемый навесной тип (металлический сайдинг)
Окна и двери:
- Остекление: ПВХ профиль 75 мм «Novotex», 2-х камерные стеклопакеты
- Входная дверь: ПВХ
Коммуникации:
- Скважина глубиной от 30 м
- Септик на 5 персон
- Холодное и горячее водоснабжение
- Отопление: «теплый пол» с электрическим котлом
Не упустите возможность стать владельцем этого уютного дома в живописном месте!
О доме
Год постройки
2024
Этажей в доме
2
Общая площадь
70 м²
Жилая площадь
35 м²
Площадь кухни
25 м²
Площадь комнат
35 м²
Материал постройки
Блочный
Материал перекрытий
Ж/б плиты
Материал кровли
Металлочерепица
Раздельных санузлов
1
Об участке
Площадь участка
6 сот.
Статус участка
Индивидуальное жилищное строительство
Электричество
Есть
Газ
Есть
Водоснабжение
Есть
Канализация
Есть
Охрана
Есть
Расположение
Россия, Сахалинская область, Анивский городской округ, село Мицулёвка, жилой комплекс Олимпия
Ипотечный калькулятор
Заполните 1 анкету — получите предложения от десятков банков на специальных условиях
Программа ипотеки
Стоимость жилья, ₽
Первый взнос, ₽
Срок кредита
от 5.75%
Ставка
от 59 766 ₽
Платеж в месяц
Расчёт носит информационный характер и не является публичной офертой
Предложите свою цену
9 500 000 ₽
135 714 ₽/м²





