Купить дом на улице Советская в Саратовской области
Россия, Саратовская область, Ртищевский район, Шило-Голицынское муниципальное образование, село Шило-Голицыно, Советская улица, 50
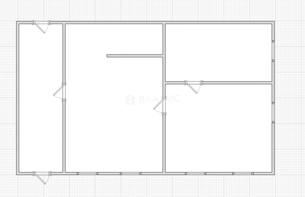
66.8 м²
Площадь дома
15 сот
Площадь участка
Деревянный
Материал постройки
1
Этажей
Описание
Участок правильной формы 15 соток + рядом земля которую можно использовать, как огород. Подъезд к участку - асфальт.
Общая площадь дома - 66,8 кв.м.
Светлые комнаты - 18,8 кв.м и 12,3 кв.м.
Уютная просторная кухня - 21,2 кв.м.
Холодное помещение - 14,5 кв.м.
В доме все коммуникации газ - новый собственный котел, вода - центральная, есть водонагреватель, канализация - выгребная яма с хорошим расположением, свет. На участке растут плодовые деревья, вишня, малина, слива, черемуха.
Есть оформленные надворные постройки: 5 сараев - 19,5 кв.м., 33,9 кв.м., 5,4 кв.м., 26,2 кв.м. и 31,2 кв.м.
Гараж - 28,9 кв.м. свет к ним проведен! Есть сухой погреб и вход на крышу, где вы можете использовать, как дополнительное место хранение.
В селе рядом с домом есть Дом культуры - СДК Шило-Голицинский, Шило-Голицынская средняя общеобразовательная школа, Администрация села Шило-Галицыно, магазин. Хорошая транспортная доступность с городом.
Для получения более подробной информации по данному объекту - ПРОСТО ПОЗВОНИТЕ!!
О доме
Год постройки
1962
Этажей в доме
1
Общая площадь
66.8 м²
Жилая площадь
31.1 м²
Площадь кухни
21.2 м²
Площадь комнат
18,8+12,3 м²
Материал постройки
Деревянный
Материал перекрытий
Деревянные
Материал кровли
Шифер
Раздельных санузлов
1
Об участке
Площадь участка
15 сот.
Статус участка
Личное подсобное хозяйство
Электричество
Есть
Газ
Есть
Водоснабжение
Есть
Канализация
Есть
Гараж
Есть
Подъезд к участку
Асфальт
Расположение
Россия, Саратовская область, Ртищевский район, Шило-Голицынское муниципальное образование, село Шило-Голицыно, Советская улица, 50
Ипотечный калькулятор
Заполните 1 анкету — получите предложения от десятков банков на специальных условиях
Программа ипотеки
Стоимость жилья, ₽
Первый взнос, ₽
Срок кредита
от 5.75%
Ставка
от 6 292 ₽
Платеж в месяц
Расчёт носит информационный характер и не является публичной офертой
Прохоров Данила
Агент по недвижимости
Предложите свою цену
1 000 000 ₽
14 970 ₽/м²




















