Продается Недвижимость Свободного Назначения, 132 м²
Россия, Республика Карелия, Сегежа, Лесная улица, 3А
132 м²
Общая площадь
Общий
Вход в помещение
Свободный
Доступ в помещение
4 из 4
Этаж
Описание
Уникальное предложение для бизнес-профессионалов и инвесторов — коммерческое помещение свободного назначения в Сегеже, Республика Карелия. Объект расположен по адресу: Лесная улица, 3А.
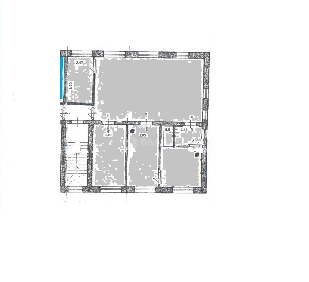
Это кирпичное здание 1968 года постройки, имеет четыре этажа, и ваше помещение находится на верхнем этаже. Общая площадь составляет 132 кв. м, что предоставляет широкие возможности для различных коммерческих целей. Высота потолков 2,45 м позволяет эффективно использовать пространство.
Помещение имеет общий вход и свободный доступ, что удобно для клиентов и сотрудников. Внутри предусмотрена вентиляция, а центральное отопление обеспечивает комфортные условия в холодное время года. Наличие одного раздельного санузла соответствует требованиям функциональности и удобства.
Парковка на территории — наземная, что добавляет привлекательности объекту.
Этот объект станет отличным выбором для тех, кто ищет просторное и функциональное помещение для своего бизнеса или рассматривает его как инвестицию. Гибкость назначения и просторность планировки делают его универсальным решением для многих видов деятельности.
Мы гарантируем безопасную сделку и юридическую поддержку нашим клиентам. Поможем одобрить ипотеку с сниженной ставкой.
Об объекте
Общая площадь
132 м²
Этаж
4
Высота потолков
2.5 м
Электрическая мощность
40 кВт
Раздельных санузлов
1
Ремонт
Без отделки
Вход в помещение
Общий
Доступ в помещение
Свободный
Удобства
Вентиляция
Без оборудования
О здании
Тип коммерции
Бизнес-центр
Год постройки
1968
Материал постройки
Кирпичный
Отопление
Центральное
Этажей в доме
4
Парковка
Наземная
Расположение
Россия, Республика Карелия, Сегежа, Лесная улица, 3А
Ипотечный калькулятор
Заполните 1 анкету — получите предложения от десятков банков на специальных условиях
Программа ипотеки
Стоимость жилья, ₽
Первый взнос, ₽
Срок кредита
от 5.75%
Ставка
от 12 576 ₽
Платеж в месяц
Расчёт носит информационный характер и не является публичной офертой
Окатов Игорь
Агент по недвижимости
Предложите свою цену
1 999 000 ₽
15 144 ₽/м²





















