Купить дом на улице Запрудная в Сердобске
Россия, Пензенская область, Сердобск, Запрудная улица, 8
289 м²
Площадь дома
45 сот
Площадь участка
Кирпичный
Материал постройки
2
Этажей
Описание
Состоящий из: жилого и гостевого дома со всеми удобствами.
Сауны с просторной беседкой, мангальной зоной и купелью на 12 человек, оборудованной мастерской и летней кухней.
Также на территории расположен хозяйственный блок для ведения животноводства, гараж с откатными воротами и закрытая парковочная зона на 8 автомашин.
Дом имеет 2 этажа + обустроенный цокольный этаж.
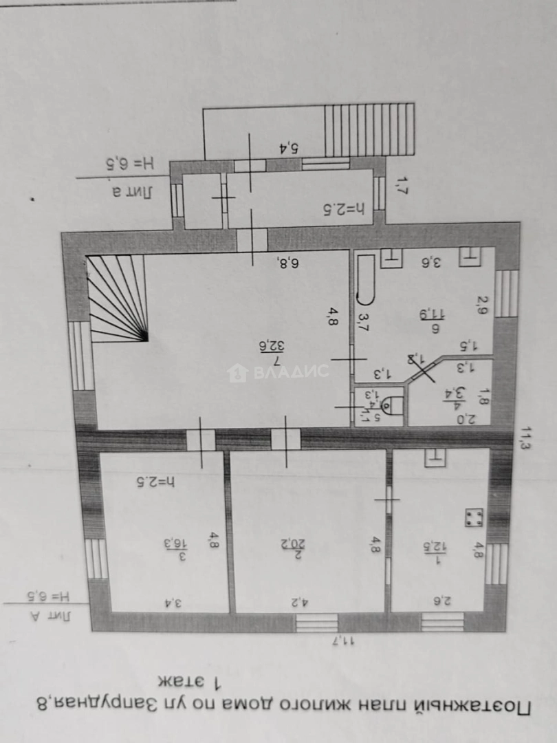
Общая площадь дома - 289 кв.м.
Жилaя площадь - 118,6 кв.м.
Кухня-гостиная - 32,7 кв.м.
ТЕНИЧЕСКИЕ ХАРАКТЕРИСТИКИ
- фундамент: железобетонные блоки
- перекрытия: железобетонные плиты
- материал стен: кирпич
- кровля: флянцевая
- пластиковые окна: поворотно - откидные
- напольное покрытие: ламинат
- входная дверь: металлическая с терморазрывом
- канализация: две ямы (перелевные)
- водоснабжение: централизованное
- газоснабжение - есть
- скрытая разводка горячей и холодной воды в доме
- электро/разводка по всему дому
- отопление.
В доме 5 жилых комнат, просторный коридор ,функциональная кухня-гостиная.
Комплекс оборудован мебелью и техникой необходимой для комфортного проживания.
На участке разновидности хвойных деревьев (Крымская сосна, ель, туя, можжевельник), плодовые деревья (яблони, груша, черешня, слива, алыча, грецкий орех, фундук), а также малина, крыжовник, смородина, виноград. Сортовые цветы - жасмин, розы, бульденеж, хоста.
Не упустите шанс стать владельцем шикарного комплекса в живописном месте!
Цена обсуждается.
Звоните прямо сейчас!
О доме
Год постройки
2005
Этажей в доме
2
Общая площадь
289 м²
Жилая площадь
118.6 м²
Площадь кухни
32.7 м²
Площадь комнат
16.3+17.8+8.8+16.9+ 28.8+30 м²
Материал постройки
Кирпичный
Материал перекрытий
Ж/б плиты
Материал кровли
Керамическая черепица
Высота потолков
2.7 м
Об участке
Площадь участка
45 сот.
Статус участка
Индивидуальное жилищное строительство
Электричество
Есть
Газ
Есть
Водоснабжение
Есть
Канализация
Есть
Гараж
Есть
Подъезд к участку
Щебенка
Расположение
Россия, Пензенская область, Сердобск, Запрудная улица, 8
Ипотечный калькулятор
Заполните 1 анкету — получите предложения от десятков банков на специальных условиях
Программа ипотеки
Стоимость жилья, ₽
Первый взнос, ₽
Срок кредита
от 5.75%
Ставка
от 144 695 ₽
Платеж в месяц
Расчёт носит информационный характер и не является публичной офертой
Лылова Екатерина
Специалист по недвижимости
Предложите свою цену
23 000 000 ₽
79 585 ₽/м²









































