Продается 1-комн. квартира, 34.3 м²
Россия, Ленинградская область, Всеволожский район, Сертолово, улица Ларина, 9
Парнас
17 мин.
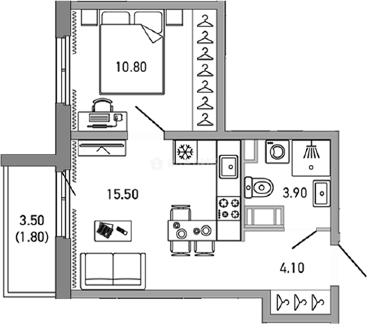
34.3 м²
Общая площадь
10.8 м²
Жилая площадь
15.5 м²
Площадь кухни
11 из 17
Этаж
Описание
В проекте предложено множество планировочных решений: в наличии квартиры, как классического типа, так и европланировки. Имеются квартиры с мастер-спальней, окном в ванной и гардеробными. Сдаются они без отделки, с высотой потолков от 2.69 до 3.32 метров.
Внутренний двор закрыт от автомобилей, спроектированы детские площадки, воркаут-зоны, арт-объекты и места для отдыха. На территории двора и лобби имеется wi-fi. Для владельцев автомобилей предусмотрен подземный паркинг.
Жилой комплекс расположен во Всеволожском районе в г. Сертолово. Инфраструктура района развита: рядом расположена поликлиника, аптеки, школы, детские сады, гимназия, магазины, спортивные клубы. До метро «Парнас» можно добраться за 20 минут на автомобиле, до КАД — 10 минут, до центра города — 40 минут.
О квартире
Общая площадь
34.3 м²
Жилая площадь
10.8 м²
Площадь кухни
15.5 м²
Площадь комнат
10.8 м²
Высота потолков
2.7199999999999998 м
Этаж
11
Окна выходят
На улицу
О доме
Год постройки
2025
Этажность
17
Материал постройки
Монолитный
Материал перекрытий
Монолитные
Отопление
Центральное
Парковка
Подземная
Расположение
Россия, Ленинградская область, Всеволожский район, Сертолово, улица Ларина, 9
Парнас
17 мин.
Проспект Просвещения
19 мин.
Озерки
21 мин.
Удельная
24 мин.
Комендантский проспект
24 мин.
Пионерская
26 мин.
Девяткино
26 мин.
Гражданский проспект
26 мин.
Ипотечный калькулятор
Заполните 1 анкету — получите предложения от десятков банков на специальных условиях
Программа ипотеки
Стоимость жилья, ₽
Первый взнос, ₽
Срок кредита
от 5.75%
Ставка
от 36 418 ₽
Платеж в месяц
Расчёт носит информационный характер и не является публичной офертой
Похожие объекты





2-комн. квартира, 38,5 м², 7/12 эт.
Парнас
16 мин.





2-комн. квартира, 38,2 м², 4/12 эт.
Парнас
16 мин.





1-комн. квартира, 36,4 м², 5/12 эт.
Парнас
16 мин.





1-комн. квартира, 32,1 м², 7/12 эт.
Парнас
16 мин.
Консультант по новостройкам
5 788 787 ₽
168 770 ₽/м²
















