Продается 1-комн. квартира, 32.23 м²
Россия, Ленинградская область, Всеволожский район, Сертолово, жилой комплекс Сертолово Парк
Парнас
16 мин.
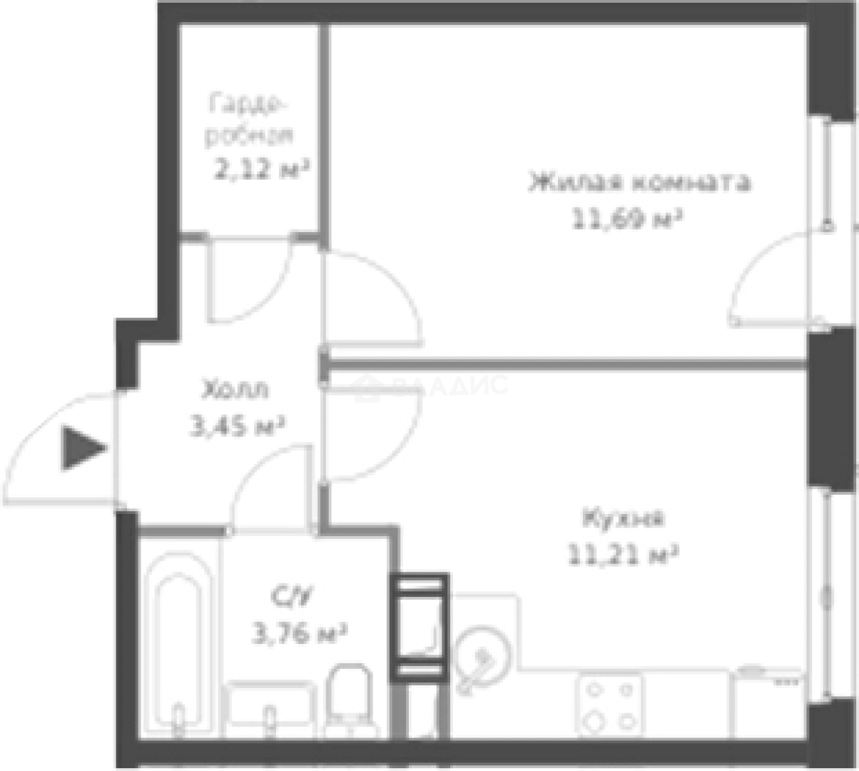
32.23 м²
Общая площадь
11.69 м²
Жилая площадь
11.21 м²
Площадь кухни
8 из 12
Этаж
Описание
Варианты жилья включают студии и трехкомнатные апартаменты с высокими потолками до 4,3 м и увеличенными окнами.
Комплекс обеспечен охраной и специализированной системой доступа, а также имеет современные детские и спортивные площадки, летний кинотеатр и два детских сада.
Расположенный в хорошо развитом районе, рядом с магазинами, школами, спорткомплексом и бассейном, жилой комплекс предлагает удобную инфраструктуру для жителей.
О квартире
Общая площадь
32.23 м²
Жилая площадь
11.69 м²
Площадь кухни
11.21 м²
Площадь комнат
11.69 м²
Высота потолков
2.8 м
Этаж
8
Окна выходят
На улицу
О доме
Год постройки
2025
Этажность
12
Материал постройки
Кирпично-монолитный
Материал перекрытий
Монолитные
Отопление
Центральное
Парковка
Многоуровневая
Расположение
Россия, Ленинградская область, Всеволожский район, Сертолово, жилой комплекс Сертолово Парк
Парнас
16 мин.
Проспект Просвещения
18 мин.
Озерки
20 мин.
Удельная
23 мин.
Комендантский проспект
23 мин.
Пионерская
24 мин.
Девяткино
25 мин.
Гражданский проспект
25 мин.
Ипотечный калькулятор
Заполните 1 анкету — получите предложения от десятков банков на специальных условиях
Программа ипотеки
Стоимость жилья, ₽
Первый взнос, ₽
Срок кредита
от 5.75%
Ставка
от 33 120 ₽
Платеж в месяц
Расчёт носит информационный характер и не является публичной офертой
Похожие объекты








Студия, 27,7 м², 6/8 эт.
Парнас
15 мин.









1-комн. квартира, 30,8 м², 1/8 эт.
Парнас
15 мин.









Студия, 27,7 м², 2/8 эт.
Парнас
15 мин.









Студия, 27,7 м², 2/8 эт.
Парнас
15 мин.
Консультант по новостройкам
5 264 583 ₽
163 345 ₽/м²














