Продается 1-комн. квартира, 34.83 м²
Россия, Ленинградская область, Всеволожский район, Сертолово, Златоглавая улица, 2к2
Парнас
26 мин.
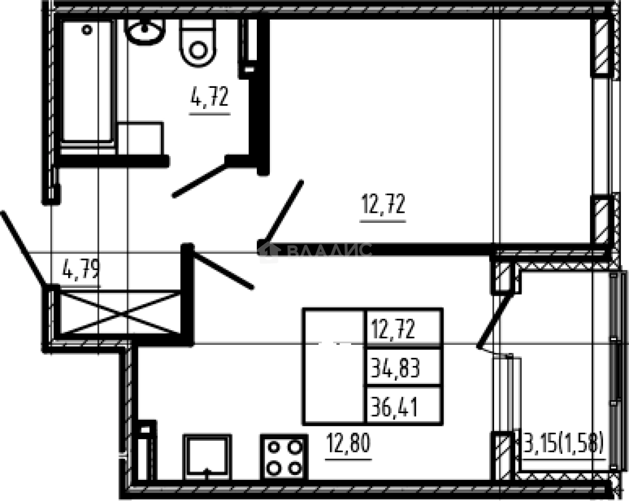
34.83 м²
Общая площадь
12.72 м²
Жилая площадь
12.8 м²
Площадь кухни
2 из 4
Этаж
Описание
В проекте представлено множество планировочных решений: в наличии квартиры, как классического типа, так и европланировки. Сдаются они без отделки. В корпусах 7.1 и 7.2 дозаказ подчистовой или чистовой отделки обязательный. Высота потолков — от 2,75 до 3 метров. В каждую квартире предусмотрены система «умная инженерия» и индивидуальная система естественной вентиляции немецкого бренда Schiedel.
В закрытых дворах жилого комплекса спроектированы бесплатные wi-fi зоны, прогулочные дорожки, детские и спортивные площадки. В проекте обустроена стоянка с зарядкой для электромобилей. В каждом доме и каждом дворе ведется видеонаблюдение с доступом на смартфон.
Жилой комплекс расположен во Всеволожском районе в окружении лесных массивов. В 7 минутах транспортом находятся Медное и Сарженское озера. В пешей доступности работают продуктовые магазины, кафе и рестораны, конный клуб, отделения почты и банка. Выезд на КАД находится в 15 минутах транспортом, метро «Парнас» — в 30 минутах транспортом.
О квартире
Общая площадь
34.83 м²
Жилая площадь
12.72 м²
Площадь кухни
12.8 м²
Площадь комнат
12.72 м²
Высота потолков
2.75 м
Этаж
2
Окна выходят
На улицу
О доме
Год постройки
2025
Этажность
4
Материал постройки
Кирпично-монолитный
Отопление
Центральное
Парковка
Наземная
Расположение
Россия, Ленинградская область, Всеволожский район, Сертолово, Златоглавая улица, 2к2
Парнас
26 мин.
Проспект Просвещения
28 мин.
Озерки
29 мин.
Ипотечный калькулятор
Заполните 1 анкету — получите предложения от десятков банков на специальных условиях
Программа ипотеки
Стоимость жилья, ₽
Первый взнос, ₽
Срок кредита
от 5.75%
Ставка
от 48 561 ₽
Платеж в месяц
Расчёт носит информационный характер и не является публичной офертой
Похожие объекты






1-комн. квартира, 33,9 м², 4/5 эт.
Парнас
26 мин.






1-комн. квартира, 34,4 м², 4/5 эт.
Парнас
26 мин.






1-комн. квартира, 32,8 м², 4/5 эт.
Парнас
26 мин.






1-комн. квартира, 34,6 м², 1/5 эт.
Парнас
26 мин.
Консультант по новостройкам
7 718 920 ₽
221 617 ₽/м²








