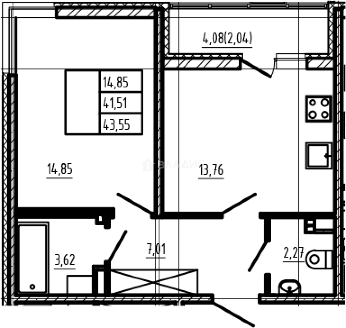
Продается 2-комн. квартира, 41.51 м²
Россия, Ленинградская область, Всеволожский район, Сертолово, Златоглавая улица, 2к4
Парнас
26 мин.
41.51 м²
Общая площадь
14.85 м²
Жилая площадь
13.76 м²
Площадь кухни
4 из 4
Этаж
Описание
В проекте представлено множество планировочных решений: в наличии квартиры, как классического типа, так и европланировки. Сдаются они без отделки. В корпусах 7.1 и 7.2 дозаказ подчистовой или чистовой отделки обязательный. Высота потолков — от 2,75 до 3 метров. В каждую квартире предусмотрены система «умная инженерия» и индивидуальная система естественной вентиляции немецкого бренда Schiedel.
В закрытых дворах жилого комплекса спроектированы бесплатные wi-fi зоны, прогулочные дорожки, детские и спортивные площадки. В проекте обустроена стоянка с зарядкой для электромобилей. В каждом доме и каждом дворе ведется видеонаблюдение с доступом на смартфон.
Жилой комплекс расположен во Всеволожском районе в окружении лесных массивов. В 7 минутах транспортом находятся Медное и Сарженское озера. В пешей доступности работают продуктовые магазины, кафе и рестораны, конный клуб, отделения почты и банка. Выезд на КАД находится в 15 минутах транспортом, метро «Парнас» — в 30 минутах транспортом.
О квартире
Общая площадь
41.51 м²
Жилая площадь
14.85 м²
Площадь кухни
13.76 м²
Площадь комнат
14.85 м²
Высота потолков
3 м
Этаж
4
Окна выходят
На улицу
О доме
Год постройки
205
Этажность
4
Материал постройки
Кирпично-монолитный
Отопление
Центральное
Парковка
Наземная
Расположение
Россия, Ленинградская область, Всеволожский район, Сертолово, Златоглавая улица, 2к4
Парнас
26 мин.
Проспект Просвещения
28 мин.
Озерки
29 мин.
Ипотечный калькулятор
Заполните 1 анкету — получите предложения от десятков банков на специальных условиях
Программа ипотеки
Стоимость жилья, ₽
Первый взнос, ₽
Срок кредита
от 5.75%
Ставка
от 60 275 ₽
Платеж в месяц
Расчёт носит информационный характер и не является публичной офертой
Похожие объекты






2-комн. квартира, 47,7 м², 1/5 эт.
Парнас
26 мин.






2-комн. квартира, 41,5 м², 3/5 эт.
Парнас
26 мин.




2-комн. квартира, 41,5 м², 2/5 эт.
Парнас
26 мин.






1-комн. квартира, 40,5 м², 4/5 эт.
Парнас
26 мин.
Консультант по новостройкам
9 581 000 ₽
230 812 ₽/м²








