Продается 3-комн. квартира, 72.83 м²
Россия, Ленинградская область, Всеволожский район, Сертолово, Кореловский переулок
Парнас
20 мин.
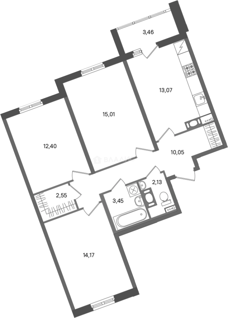
72.83 м²
Общая площадь
41.58 м²
Жилая площадь
13.07 м²
Площадь кухни
2 из 12
Этаж
Описание
В жилом комплексе предложено множество планировочных решений: в наличии квартиры, как классического типа, так и европланировки. Сдаются они с чистовой отделкой и высотой потолков 2.77 метров. Есть возможность дозаказать меблировку.
На закрытой дворовой территории комплекса спроектированы игровые зоны для детей разных возрастов, пространства для отдыха и занятий спортом, а также имеется собственная живописная экотропа «Заповедный лабиринт» протяженностью около 3 километров. На территории имеется собственный детский сад, пристроенный к 1 корпусу. Безопасность в жилом комплексе обеспечивается системой видеонаблюдения и контроля доступа.
Проект расположен во Всеволожском районе в г. Сертолово. Рядом расположены торговый комплекс, школа, магазины, аптеки, мед. центр, конный клуб. В 15 минутах на автомобиле находятся Медное и Сарженское озера. До метро «Парнас» можно добраться за 25 минут на автомобиле.
О квартире
Общая площадь
72.83 м²
Жилая площадь
41.58 м²
Площадь кухни
13.07 м²
Площадь комнат
14.17+12.4+15.01 м²
Высота потолков
2.77 м
Этаж
2
Окна выходят
На улицу
О доме
Год постройки
2026
Этажность
12
Материал постройки
Кирпично-монолитный
Отопление
Центральное
Парковка
Наземная
Расположение
Россия, Ленинградская область, Всеволожский район, Сертолово, Кореловский переулок
Парнас
20 мин.
Проспект Просвещения
22 мин.
Озерки
24 мин.
Удельная
27 мин.
Комендантский проспект
27 мин.
Девяткино
28 мин.
Гражданский проспект
29 мин.
Пионерская
29 мин.
Ипотечный калькулятор
Заполните 1 анкету — получите предложения от десятков банков на специальных условиях
Программа ипотеки
Стоимость жилья, ₽
Первый взнос, ₽
Срок кредита
от 5.75%
Ставка
от 78 899 ₽
Платеж в месяц
Расчёт носит информационный характер и не является публичной офертой
Похожие объекты








3-комн. квартира, 72,8 м², 5/12 эт.
Парнас
20 мин.








3-комн. квартира, 72,8 м², 11/12 эт.
Парнас
20 мин.







3-комн. квартира, 72,8 м², 4/12 эт.
Парнас
20 мин.





4-комн. квартира, 77,8 м², 1/12 эт.
Парнас
16 мин.
Консультант по новостройкам
12 541 326 ₽
172 200 ₽/м²















