Продается 2-комн. квартира, 57.7 м²
Россия, Ленинградская область, Всеволожский район, Сертолово, ЖК Верен Норт Сертолово
Парнас
16 мин.
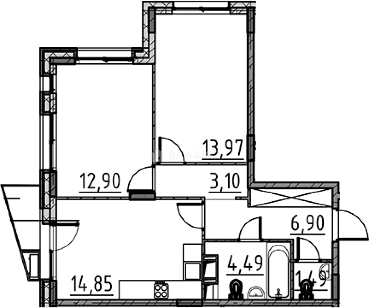
57.7 м²
Общая площадь
26.87 м²
Жилая площадь
14.85 м²
Площадь кухни
5 из 12
Этаж
Описание
В проекте представлено множество планировочных решений: от студий до просторных 3-комнатных вариантов. Все лоты сдаются с базовой отделкой, высотой потолков до 4,3 метров, увеличенными окнами.
Территория комплекса охраняемая, вход осуществляется через специализированную систему доступа. Имеются современные детские и многофункциональные спортивные площадки, летний кинотеатр под открытым небом, 2 детских сада.
ЖК расположен в районе с хорошо развитой инфраструктурой. В шаговой доступности от комплекса расположены магазины, детские сады, школы, спорткомплекс и бассейн.
О квартире
Общая площадь
57.7 м²
Жилая площадь
26.87 м²
Площадь кухни
14.85 м²
Площадь комнат
13.97+12.9 м²
Высота потолков
2.8 м
Этаж
5
Окна выходят
На улицу
О доме
Год постройки
2027
Этажность
12
Материал постройки
Кирпично-монолитный
Материал перекрытий
Монолитные
Отопление
Центральное
Парковка
Многоуровневая
Расположение
Россия, Ленинградская область, Всеволожский район, Сертолово, ЖК Верен Норт Сертолово
Парнас
16 мин.
Проспект Просвещения
18 мин.
Озерки
19 мин.
Удельная
23 мин.
Комендантский проспект
23 мин.
Девяткино
24 мин.
Пионерская
24 мин.
Гражданский проспект
25 мин.
Ипотечный калькулятор
Заполните 1 анкету — получите предложения от десятков банков на специальных условиях
Программа ипотеки
Стоимость жилья, ₽
Первый взнос, ₽
Срок кредита
от 5.75%
Ставка
от 59 120 ₽
Платеж в месяц
Расчёт носит информационный характер и не является публичной офертой
Похожие объекты







2-комн. квартира, 54,8 м², 2/12 эт.
Парнас
16 мин.






2-комн. квартира, 57,7 м², 9/12 эт.
Парнас
16 мин.







2-комн. квартира, 57,7 м², 9/12 эт.
Парнас
16 мин.





3-комн. квартира, 57,7 м², 6/12 эт.
Парнас
16 мин.
Консультант по новостройкам
9 397 302 ₽
162 865 ₽/м²



















