Продается 1-комн. квартира, 31.2 м²
Россия, Архангельская область, Северодвинск, Первомайская улица, 68
31.2 м²
Общая площадь
14.1 м²
Жилая площадь
7.2 м²
Площадь кухни
2 из 5
Этаж
Описание
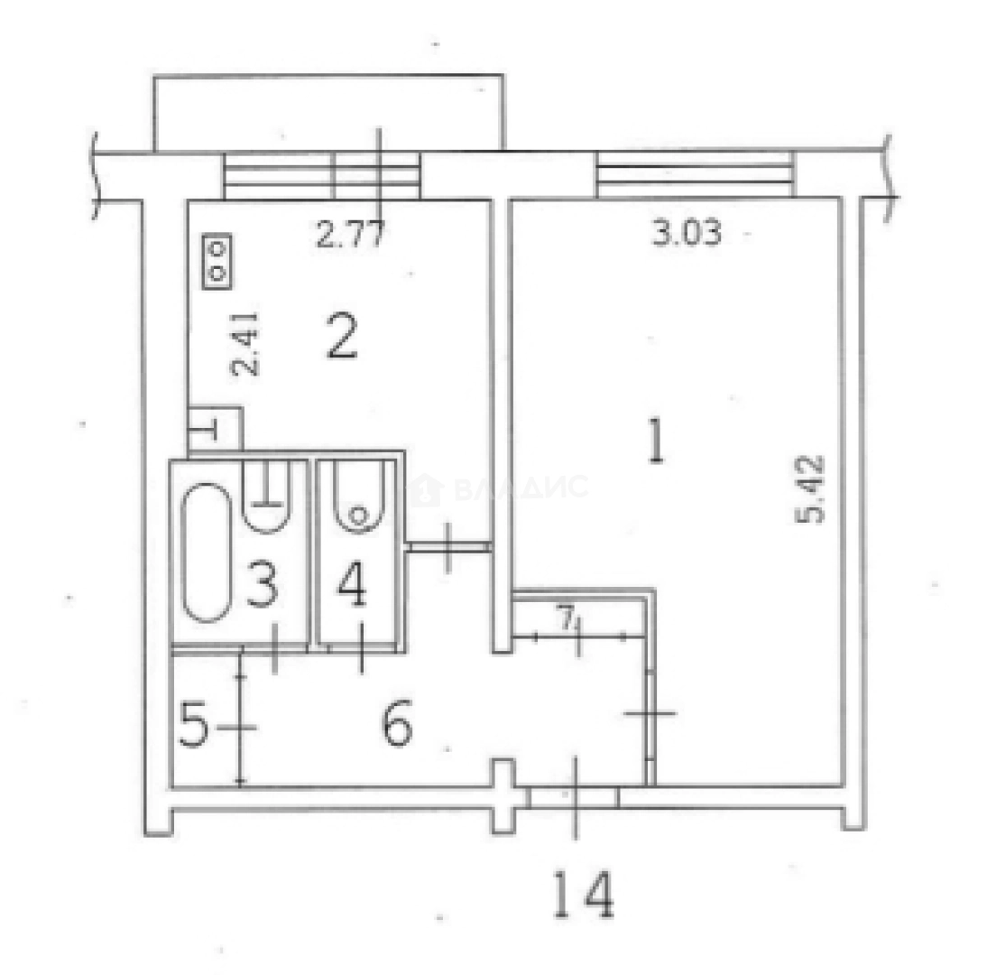
Продаётся однокомнатная квартира в доме московской серии площадью 31,2 кв. м на втором этаже пятиэтажного дома по адресу: Первомайская улица, 68.
Раздельный санузел. Балкон с кухни. Установлены пластиковые стеклопакеты. Квартира под ремонт, отличное решение для тех, кто ценит индивидуальность и хочет сделать своё пространство уникальным.
В шаговой доступности: магазины, школа №23, Детский сад "Дружный хоровод", Севмаш, Военные части, остановки общественного транспорта.
Подходит под Арктическую ипотеку!
Мы гарантируем безопасную сделку и юридическую поддержку нашим Клиентам.
О квартире
Общая площадь
31.2 м²
Жилая площадь
14.1 м²
Площадь кухни
7.2 м²
Площадь комнат
14,1 м²
Высота потолков
2.5 м
Подъезд
2
Этаж
2
Расположение квартиры
не угловая
Окна выходят
На улицу
Раздельных санузлов
2
О доме
Год постройки
1972
Этажность
5
Количество подъездов
3
Материал постройки
Панельный
Материал перекрытий
Ж/б плиты
Отопление
Центральное
Парковка
Наземная
Расположение
Россия, Архангельская область, Северодвинск, Первомайская улица, 68
Ипотечный калькулятор
Заполните 1 анкету — получите предложения от десятков банков на специальных условиях
Программа ипотеки
Стоимость жилья, ₽
Первый взнос, ₽
Срок кредита
от 5.75%
Ставка
от 18 559 ₽
Платеж в месяц
Расчёт носит информационный характер и не является публичной офертой
Предложите свою цену
2 950 000 ₽
94 551 ₽/м²


