Купить дом на улице Тихвинская в Шебекине
Россия, Белгородская область, Шебекино, Тихвинская улица
120 м²
Площадь дома
7.9 сот
Площадь участка
Блочный
Материал постройки
2
Этажей
Описание
Современный 2-х этажный дом на участке 7.9 соток с полным комплектом коммуникаций: центральный газ, собственная скважина, септик, теплые полы на первом этаже. Рядом — лесной массив (сосновый бор и дубовая роща), инфраструктура и транспортная развязка до Белгорода.
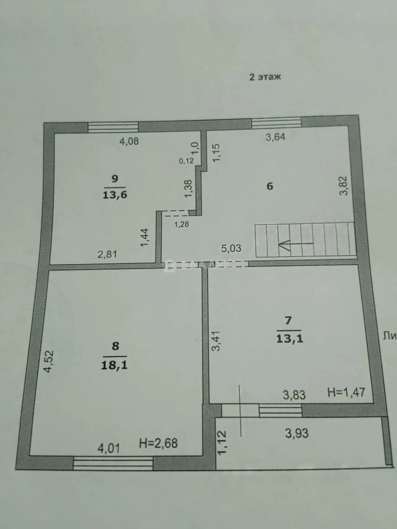
🏡 Планировка и отделка:
1 этаж: прихожая (18.6 м²), кухня (12.4 м²) с выходом на террасу, гостиная (20 м²), раздельный санузел.
2 этаж: 3 спальни (18 м² + 13.6 м² + 13.4 м²), санузел с подключением под биде, балкон (предусмотрен, нужно доделать).
Дополнительно: гардеробная (8 м²), чердак с выдвижной лестницей.
Лестница из массива дерева, натурального цвета.
✅ Коммуникации:
Газ: центральный
Вода: собственная скважина (чистая вода без переплат) + в будущем — центральное водоснабжение (рядом водонапорная башня, см.фото).
Канализация: септик
Электричество: подведено
Отопление: теплые полы на 1 этаже
📍 Локация (главное преимущество!):
Элитный микрорайон в санаторной зоне 🏞️
500 м до остановки, супермаркета, храма, детских площадок
Рядом — ухоженный лес для прогулок и пробежок
Удобный выезд в Белгород и на объездную дорогу
💡 Что нужно доделать:
Наружная отделка фасада
Монтаж балкона на втором этаже
Обустройство террасы
Срочных работ нет. Состояние дома: "Заходи и живи!"
Идеальный вариант для семьи с детьми.
Отправим видео по запросу.
Подходит по ПП 555, ПП 272, Курский сертификат.
Звоните — организуем просмотр в день обращения!
Мы гарантируем безопасную сделку и юридическую поддержку нашим клиентам. Поможем одобрить ипотеку с сниженной ставкой.
#купитьдомвшебекино #купитьдомвшебекинобелгородской #купитьдомвшебекинобелгородскойобласти
О доме
Год постройки
2022
Этажей в доме
2
Общая площадь
120 м²
Жилая площадь
65 м²
Площадь кухни
12.4 м²
Площадь комнат
20+18+13,6+13,4 м²
Материал постройки
Блочный
Материал перекрытий
Ж/б плиты
Материал кровли
Металлочерепица
Высота потолков
2.85 м
Об участке
Площадь участка
7.9 сот.
Статус участка
Индивидуальное жилищное строительство
Электричество
Есть
Газ
Есть
Водоснабжение
Есть
Канализация
Есть
Без благоустройства участка
Есть
Подъезд к участку
Асфальт
Расположение
Россия, Белгородская область, Шебекино, Тихвинская улица
Ипотечный калькулятор
Заполните 1 анкету — получите предложения от десятков банков на специальных условиях
Программа ипотеки
Стоимость жилья, ₽
Первый взнос, ₽
Срок кредита
от 5.75%
Ставка
от 38 942 ₽
Платеж в месяц
Расчёт носит информационный характер и не является публичной офертой
Предложите свою цену
6 190 000 ₽
51 583 ₽/м²




















