Купить дом в районе Заднепровский в Смоленске
Россия, Смоленск, посёлок Анастасино, 5Б
109 м²
Площадь дома
12 сот
Площадь участка
Блочный
Материал постройки
1
Этажей
Описание
Продаётся современный дом в Смоленске, посёлок Анастасино, 5Б.
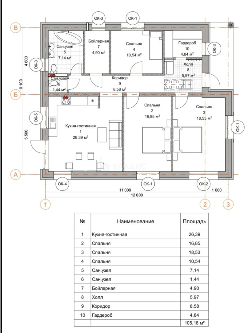
Год постройки — 2025. Дом построен из блоков. Крыша из металлочерепицы. Высота потолков — 3 метра. В доме три комнаты площадью 17, 10,5 и 18,5 квадратных метров, общая площадь дома — 109 квадратных метра, жилая площадь — более 46 квадратных метров, площадь кухни-гостинной — 26,4 квадратных метров.
Дом подходит для круглогодичного проживания. Асфальтированная дорога практически до самого дома. Дом на второй линии от дороги, тишина и уют Вам обеспечены. Есть все коммуникации: водоснабжение (скважина артезианская 107 метров), газ, септик - станция глубокой очистки (не требует откачивания), электричество. Отопление от индивидуального котла. Премиальные окна Melke. По всему дому теплые полы. Выполнена стяжка.
Участок площадью 12 соток, статус — индивидуальное жилищное строительство. Подъезд к участку асфальтированный. Хорошее живописное место, рядом несколько озер.
Мы гарантируем безопасную сделку и юридическую поддержку нашим клиентам.
Под семейную и сельскую ипотеку не подходит!
Звоните, записывайтесь на просмотр!
О доме
Год постройки
2025
Этажей в доме
1
Общая площадь
109 м²
Жилая площадь
46 м²
Площадь кухни
26.4 м²
Площадь комнат
17+10,5+18,5 м²
Материал постройки
Блочный
Материал перекрытий
Смешанные
Материал кровли
Металлочерепица
Высота потолков
3 м
Об участке
Площадь участка
12 сот.
Статус участка
Индивидуальное жилищное строительство
Электричество
Есть
Газ
Есть
Водоснабжение
Есть
Канализация
Есть
Без благоустройства участка
Есть
Подъезд к участку
Асфальт
Расположение
Россия, Смоленск, посёлок Анастасино, 5Б
Ипотечный калькулятор
Заполните 1 анкету — получите предложения от десятков банков на специальных условиях
Программа ипотеки
Стоимость жилья, ₽
Первый взнос, ₽
Срок кредита
от 5.75%
Ставка
от 33 343 ₽
Платеж в месяц
Расчёт носит информационный характер и не является публичной офертой
Предложите свою цену
5 300 000 ₽
48 624 ₽/м²













