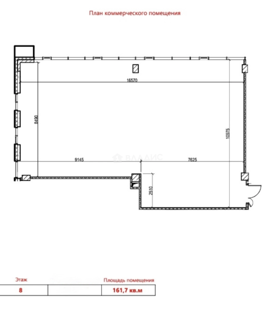
Сдается Офис, 161.7 м²
Россия, Москва, Огородный проезд, 16/1с6
Бутырская
3 мин.
161.7 м²
Общая площадь
Общий
Вход в помещение
Пропускная система
Доступ в помещение
8 из 12
Этаж
Описание
Преимущества локации:
- 1 минута пешком до м. Бутырская
- 6 минут до МЦД Останкино
- Менее 10 минут на машине до ТТК и СВХ
Инфраструктура БЦ:
- Современные зоны лобби
- Охрана и пропускной режим
- Наземный паркинг
- Первые этажи под ритейл и кафе
Технические характеристики:
- Отделка: бетон (возможен вариант с отделкой)
- Высота потолков: 3,7 м
- Нагрузка на пол: 400 кг/м²
- Электропитание: 0,1 кВт/м²
- Системы: приточно-вытяжная вентиляция, центральное кондиционирование, АПС, ОПС и пожаротушение.
- Окна с проветриванием, центральная диспетчеризация
Об объекте
Общая площадь
161.7 м²
Этаж
8
Высота потолков
3.7 м
Раздельных санузлов
2
Ремонт
Без отделки
Вход в помещение
Общий
Доступ в помещение
Пропускная система
Удобства
Интернет
Кондиционер
Вентиляция
Охрана
Пожарная сигнализация
Условия аренды
Коммунальные платежи
Включены
Минимальный срок аренды
11 мес.
Счётчики
Отдельно
О здании
Тип коммерции
Бизнес-центр
Год постройки
2025
Материал постройки
Монолитный
Отопление
Центральное
Этажей в доме
12
Пассажирских лифтов
4
Грузовых лифтов
2
Парковка
Наземная
Расположение
Россия, Москва, Огородный проезд, 16/1с6
Бутырская
3 мин.
Бутырская
3 мин.
Фонвизинская
14 мин.
Дмитровская
18 мин.
Тимирязевская
21 мин.
48 168 ₽/м² в год
Комиссия
100%
Залог
650 000 ₽
Предоплата
650 000 ₽
Налог
НДС не облагается
649 000 ₽/мес.









