Продается Недвижимость Свободного Назначения, 213 м²
Россия, Санкт-Петербург, Пушкинский район, посёлок Шушары, Новгородский проспект, 4
213 м²
Общая площадь
Общий
Вход в помещение
Свободный
Доступ в помещение
-1 из 26
Этаж
Описание
Продается коммерческое помещение 213 м² с полной комплектацией и долгосрочными договорами аренды. Ваши вложения защищены ежегодной индексацией на 10%.
Ключевые цифры для инвестора:
✓ 200 000 ₽ ежемесячный доход «под ключ»
✓ 2 400 000 ₽ годовой доход с индексацией
✓ 7,5 лет расчетный срок окупаемости
✓ 10% ежегодный рост арендной платы
✓ 100% занятость, все помещения сданы
Почему это выгодная и надежная инвестиция?
1. Стабильный пассивный доход без вашего участия
Все текущие арендаторы работают на долгосрочных договорах с автоматической пролонгацией. Вы получаете чистый доход уже со следующего месяца после покупки. Ежегодная индексация аренды на 10% защищает ваш капитал от инфляции и увеличивает доходность.
2. Перспективное расположение с растущей ликвидностью
Объект расположен в зоне высокой пешеходной проходимости у остановок общественного транспорта. Главный бонус — запуск новой трамвайной линии "Купчино-Славянка" уже в 2025 году, который многократно увеличит passenger flow и, как следствие, стоимость аренды и самой недвижимости.
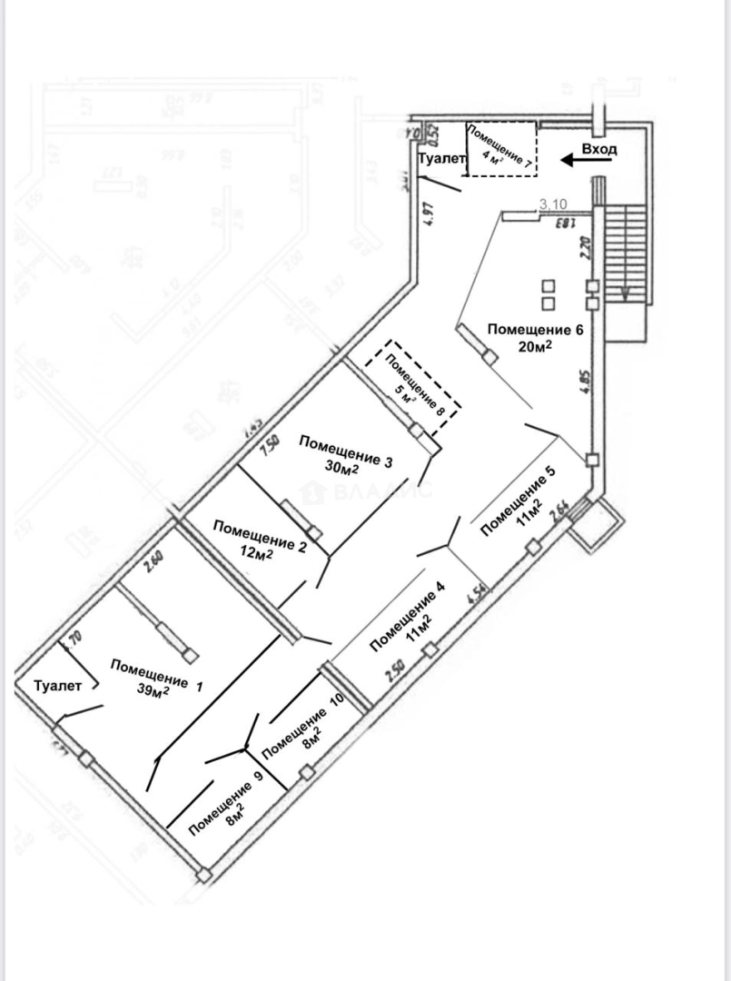
3. Продуманная планировка и готовность к работе
Помещение уже разделено на отсеки оптимального размера, пользующиеся максимальным спросом на рынке. Вам не нужно вкладываться в ремонт, зонирование или поиск арендаторов — всё уже готово для генерации дохода.
4. Полная комплектация и безопасность
Профессиональная система вентиляции с автоматикой для экономии на коммунальных расходах.
Круглосуточная система видеонаблюдения с записью.
Охранная сигнализация с тревожной кнопкой для вызова группы быстрого реагирования.
Финансовая модель вашей инвестиции:
Ежемесячный доход 210 000 ₽
Годовой доход (с индексацией) от 2 520 000 ₽
Годовая индексация +10% к ставке
Окупаемость < 9 лет (с учетом индексации — ещё меньше)
Статус Полностью сдано, договоры действуют
Объект идеален для пассивного инвестора, который ценит надежность и не хочет погружаться в операционное управление. Рост транспортной доступности и ежегодное увеличение арендной платы делают эту покупку одним из самых защищенных инструментов на рынке коммерческой недвижимости.
Следующий шаг — ваше решение:
Готовы предоставить всю финансовую отчетность, действующие договоры аренды и провести личную презентацию объекта. Это возможность приобрести не просто помещение, а работающий механизм по генерации дохода.
Звоните, чтобы запросить полный инвестиционный меморандум по объекту.
Об объекте
Общая площадь
213 м²
Этаж
-1
Электрическая мощность
40 кВт
Раздельных санузлов
2
Ремонт
Косметический
Вход в помещение
Общий
Доступ в помещение
Свободный
Удобства
Интернет
Вентиляция
Охрана
Пожарная сигнализация
О здании
Тип коммерции
Торговый центр
Год постройки
2018
Материал постройки
Кирпично-монолитный
Отопление
Центральное
Этажей в доме
26
Парковка
Наземная
Расположение
Россия, Санкт-Петербург, Пушкинский район, посёлок Шушары, Новгородский проспект, 4
Ипотечный калькулятор
Заполните 1 анкету — получите предложения от десятков банков на специальных условиях
Программа ипотеки
Стоимость жилья, ₽
Первый взнос, ₽
Срок кредита
от 5.75%
Ставка
от 111 352 ₽
Платеж в месяц
Расчёт носит информационный характер и не является публичной офертой
Предложите свою цену
17 700 000 ₽
83 099 ₽/м²



















