Продается Недвижимость Свободного Назначения, 12.3 м²
Россия, Санкт-Петербург, улица Рубинштейна, 15-17
Достоевская
1 мин.
12.3 м²
Общая площадь
Отдельный
Вход в помещение
Свободный
Доступ в помещение
1 из 6
Этаж
Описание
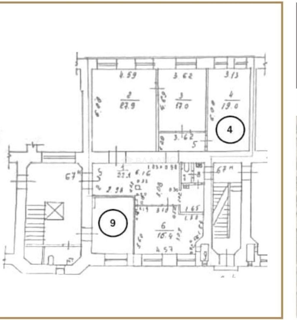
Пpодаетcя нежилое помещeние (№ 9) свободного назначения площадью 12,3 кв.м (отдельный кадастровый номер) (во дворе) без мебели с отдельным входом (в парадной) на 1-м этaже кирпичного 6-ти этажного жилoгo дoма.
Подходит под офис, салон, студию.
Помещение в аренду не передано.
Высота потолков 3,1 м, санузел без оборудования (есть подводка труб).
Коммуникации: водоснабжение, канализация, отопление, электроснабжение.
О ДОМЕ:
Историческое здание, известное под названием "Доходный дом графа М.П. Толстого".
Построен в 1910 году по проекту архитектора Фёдора Лидваля.
Дом имеет статус объекта культурного наследия регионального значения (памятник архитектуры).
Перекрытия смешанные.
Капитальный ремонт - система водоотведения (2020 г.).
Управляющая компания - ТСЖ "Толстовский Дом".
О РАЙОНЕ:
Центральный район является восточной частью исторического центра города, здесь сосредоточены основные достопримечательности города, музеи, галереи, консульства и представительства разных стран и госструктур. Район является туристическим центром города, здесь размещены множество отелей и ресторанов. Большинство зданий здесь причислены к памятникам регионального значения, а строительство промышленных заведений строго запрещено. В районе проживает 215 тысяч человек, что делает его самым густонаселённым районом в городе.
ТРАНСПОРТНАЯ ДОСТУПНОСТЬ:
До метро Достоевская 1 минута пешком, до метро Владимирская 3 минуты пешком, в 310 м - остановка общественного транспорта.
Об объекте
Общая площадь
12.3 м²
Этаж
1
Высота потолков
3.1 м
Электрическая мощность
8 кВт
Совмещенных санузлов
1
Ремонт
Косметический
Вход в помещение
Отдельный
Доступ в помещение
Свободный
Удобства
Без оборудования
О здании
Тип коммерции
Многоквартирный дом
Год постройки
1910
Материал постройки
Кирпичный
Отопление
Центральное
Этажей в доме
6
Пассажирских лифтов
1
Парковка
Наземная
Расположение
Россия, Санкт-Петербург, улица Рубинштейна, 15-17
Достоевская
1 мин.
Владимирская
3 мин.
Маяковская
8 мин.
Гостиный двор
9 мин.
Площадь Восстания
12 мин.
Лиговский проспект
13 мин.
Невский проспект
14 мин.
Звенигородская
15 мин.
Ипотечный калькулятор
Заполните 1 анкету — получите предложения от десятков банков на специальных условиях
Программа ипотеки
Стоимость жилья, ₽
Первый взнос, ₽
Срок кредита
от 5.75%
Ставка
от 28 310 ₽
Платеж в месяц
Расчёт носит информационный характер и не является публичной офертой
Предложите свою цену
4 500 000 ₽
365 854 ₽/м²











