Продается 3-комн. квартира, 59.2 м²
Россия, Санкт-Петербург, проспект Луначарского, 21к3
Озерки
12 мин.
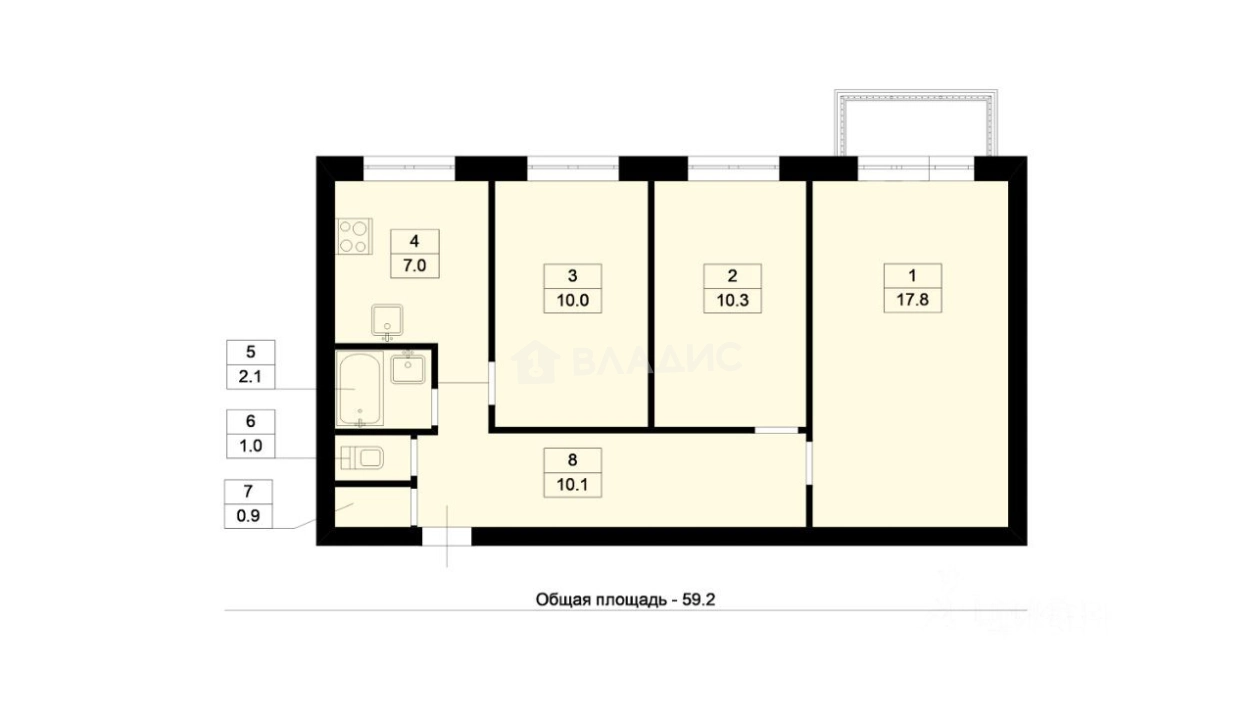
59.2 м²
Общая площадь
38.1 м²
Жилая площадь
7 м²
Площадь кухни
9 из 9
Этаж
Описание
Все окна выходят на Юг. Окна выходят во двор, из окна видны деревья и небо.
В 2012 году проведён капитальный ремонт квартиры:
- заново отлит пол, сделано две зоны тёплого пола,
- новые межкомнатные перегородки, выровнены все несущие стены,
- новые окна,
- новые батареи,
- полностью заменена вся электропроводка в квартире,
- установлены натяжные потолки,
- ванна и балкон облицованы кафелем.
КЛАДОВАЯ: установлена стиральная машина и сделаны удобные полки для хранения хозяйственных принадлежностей.
ТУАЛЕТ: инсталляция, удобный шкаф для хранения, доступ к коммуникациям сохранён.
ВАННАЯ: дизайнерское решение, маленькая (120 см), но всё же ванна, два зеркала, удобные полки в ванной, тумба под раковину выполнена из той же плитки, которой облицованы стены, освещение, как в гримёрной, для идеального макияжа.
КУХНЯ: небольшая, но эргономичная. Для двух человек очень комфортно. Кухня остаётся. Вытяжка, газовая плита и электрическая духовка. По технике и фартуку есть нюансы, но если нужно сразу заехать и жить, то да, всё функционально.
ДВЕ СПАЛЬНИ: почти одинаковый размер, дверные проёмы при замене перегородок переместили таким образом, что есть возможность удобно разместить двуспальные кровати.
БОЛЬШАЯ КОМНАТА: использовалась как фотостудия, кабинет и место для двигательных занятий. На одной из стен сделанное на заказ зеркало шириной 3 м: идеально подходит для занятий йогой или танцами. Так же из этой комнаты есть выход на балкон.
КОРИДОР: большой, вместительный, сделана удобная система хранения 4 одинаковых снаружи шкафа ИКЕА, в которых может хранится всё. Остаются в квартире. В прихожей есть ростовое зеркало.
ПЛЮСЫ КВАРТИРЫ:
- максимум дневного освещения,
- дизайнерский ремонт,
- всё в квартире организовано очень эргономично,
- при необходимости можно заехать сразу, а косметический ремонт сделать позже,
- перед окнами и вокруг дома много зелени,
- зимой в квартире очень тепло,
- квартира прекрасно подходит для любителей растений,
- 9-ый этаж никаких соседей сверху!
- очень ответственное ТСЖ: чистый подъезд, который регулярно убирается и ремонтируется,
- в доме установлен новый лифт.
ПЛЮСЫ ЛОКАЦИИ:
- вокруг много зелени,
- много детских, спортивных площадок и 2 площадки для выгула собак,
- гимназия и музыкальная школа прямо во дворе, два детских сада в 5 минутах ходьбы,
- в пешей доступности: метро, продуктовые магазины, аптеки, пункты выдачи, почта, поликлиники, платные мед.центры, хорошая стоматология и другое,
- большое количество общественного наземного транспорта, на котором можно добраться до разных веток метро и других мест,
- недалеко находятся несколько парков, рядом с домом есть возможность арендовать велосипеды, лыжи и сноуборды.
Один собственник.
О квартире
Общая площадь
59.2 м²
Жилая площадь
38.1 м²
Площадь кухни
7 м²
Этаж
9
Расположение квартиры
не угловая
Окна выходят
На улицу
Раздельных санузлов
1
Ремонт
Евро
Балкон
Есть
О доме
Год постройки
1978
Этажность
9
Количество подъездов
2
Материал постройки
Панельный
Материал перекрытий
Ж/б плиты
Отопление
Центральное
Расположение
Россия, Санкт-Петербург, проспект Луначарского, 21к3
Озерки
12 мин.
Проспект Просвещения
16 мин.
Удельная
4 мин.
Парнас
4 мин.
Политехническая
6 мин.
Академическая
7 мин.
Гражданский проспект
7 мин.
Пионерская
7 мин.
Ипотечный калькулятор
Заполните 1 анкету — получите предложения от десятков банков на специальных условиях
Программа ипотеки
Стоимость жилья, ₽
Первый взнос, ₽
Срок кредита
от 5.75%
Ставка
от 97 512 ₽
Платеж в месяц
Расчёт носит информационный характер и не является публичной офертой
Предложите свою цену
15 500 000 ₽
261 824 ₽/м²


















