Продается 1-комн. квартира, 26.7 м²
Россия, Санкт-Петербург, 1-я линия Васильевского острова, 54В
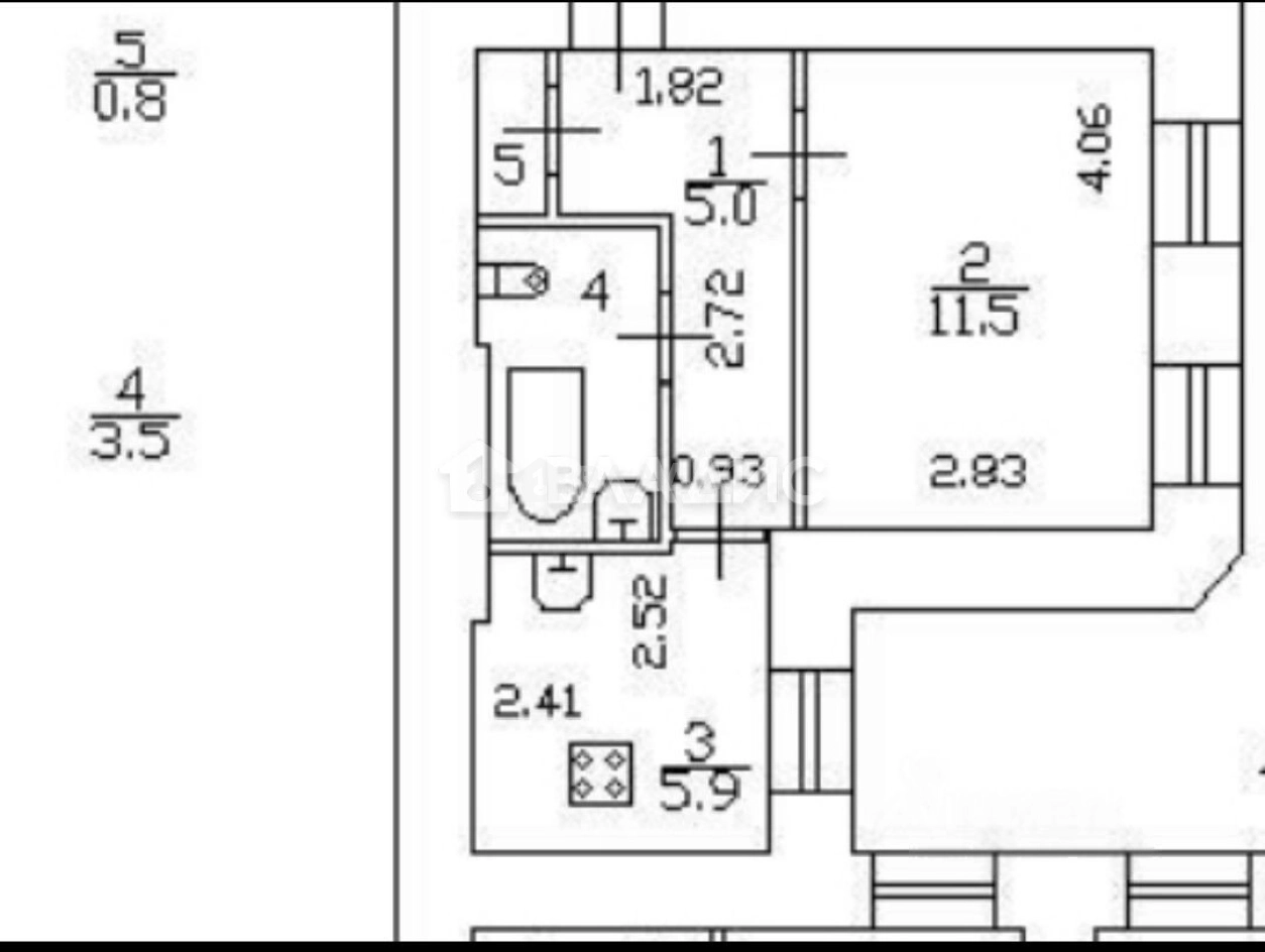
26.7 м²
Общая площадь
11.5 м²
Жилая площадь
5.9 м²
Площадь кухни
4 из 4
Этаж
Описание
Уникальное предложение на рынке недвижимости Санкт-Петербурга Адрес: 1-я линия Васильевского острова, 54В Описание объекта: - Год постройки: 1917 - Материал постройки: кирпичный - Этажность: 4 - Этаж: 4 - Общая площадь: 26,7 кв. м - Жилая площадь: 11,5 кв. м - Площадь кухни: 5,9 кв. м - Ремонт: косметический - Окна выходят на улицу и во двор - Совмещённый санузел Преимущества: - Выгодная цена: отличное предложение для тех, кто ищет доступное жильё в престижном районе. - Удобное расположение: близость к центру города и основным транспортным магистралям делает эту квартиру идеальным выбором для студентов и молодых специалистов. - Историческая ценность: кирпичный дом 1917 года постройки привлекает внимание ценителей старины и неповторимой атмосферы. Эта квартира — отличный выбор для студентов, пар без детей или инвесторов, ищущих ликвидное жильё в одном из самых престижных районов Санкт-Петербурга. Звоните прямо сейчас, чтобы узнать больше и записаться на просмотр! Мы гарантируем безопасную сделку и юридическую поддержку нашим Клиентам. Поможем одобрить ипотеку с сниженной ставкой.1
О квартире
Общая площадь
26.7 м²
Жилая площадь
11.5 м²
Площадь кухни
5.9 м²
Площадь комнат
11.5 м²
Этаж
4
Расположение квартиры
не угловая
Окна выходят
На улицу, Во двор
Совмещенных санузлов
1
Мебель
Да
Ремонт
Косметический
О доме
Год постройки
1917
Этажность
4
Количество подъездов
2
Материал постройки
Кирпичный
Материал перекрытий
Смешанные
Отопление
Центральное
Расположение
Россия, Санкт-Петербург, 1-я линия Васильевского острова, 54В
Ипотечный калькулятор
Заполните 1 анкету — получите предложения от десятков банков на специальных условиях
Программа ипотеки
Стоимость жилья, ₽
Первый взнос, ₽
Срок кредита
от 5.75%
Ставка
от 50 329 ₽
Платеж в месяц
Расчёт носит информационный характер и не является публичной офертой
Предложите свою цену
8 000 000 ₽
299 626 ₽/м²





