Продается 4-комн. квартира, 88.7 м²
Россия, Санкт-Петербург, улица Дыбенко, 3
Елизаровская
17 мин.
88.7 м²
Общая площадь
55.1 м²
Жилая площадь
18.6 м²
Площадь кухни
8 из 23
Этаж
Описание
Планировки различаются в каждом корпусе, они представлены как классическими так и европланировками. В некоторых квартирах спроектированы потолки высотой до 3,15 метров, кухни-гостиные и ниши под гардеробные. Фасады первой линии обращены в сторону Невы, поэтому квартиры имеют видовые характеристики. Квартиры передаются покупателям без отделки.
Жилой комплекс расположен в Невском районе на Октябрьской набережной. Проект включает в себя четыре детских сада на 720 мест, две школы на 3300 мест и детский образовательный центр на 200 мест. На первых этажах корпусов предусмотрены коммерческие помещения. Придомовая территория благоустроена пешеходным бульваром, скверами, зелеными зонами и ландшафтным дизайном. Во дворе установлены детские площадки, спортивные комплексы, а также подземные и наземные многоуровневые паркинги на 4000 мест. Проектом предусмотрен собственный выход на благоустроенную набережную.
В районе расположены парки и скверы, работают магазины, отделения почты и банков, ТРК «Лондон Молл». В 10 минутах транспортом находится метро «Улица Дыбенко» и выезд на КАД.
О квартире
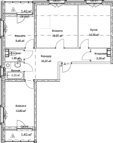
Общая площадь
88.7 м²
Жилая площадь
55.1 м²
Площадь кухни
18.6 м²
Площадь комнат
17.6+15.2+22.3 м²
Высота потолков
2.82 м
Этаж
8
Окна выходят
На улицу
О доме
Год постройки
2023
Этажность
23
Материал постройки
Кирпично-монолитный
Материал перекрытий
Монолитные
Отопление
Своя котельная
Расположение
Россия, Санкт-Петербург, улица Дыбенко, 3
Елизаровская
17 мин.
Улица Дыбенко
27 мин.
Ломоносовская
29 мин.
Проспект Большевиков
4 мин.
Ладожская
6 мин.
Пролетарская
6 мин.
Новочеркасская
6 мин.
Ипотечный калькулятор
Заполните 1 анкету — получите предложения от десятков банков на специальных условиях
Программа ипотеки
Стоимость жилья, ₽
Первый взнос, ₽
Срок кредита
от 5.75%
Ставка
от 173 619 ₽
Платеж в месяц
Расчёт носит информационный характер и не является публичной офертой
Похожие объекты






3-комн. квартира, 79,5 м², 8/9 эт.
Елизаровская
8 мин.






3-комн. квартира, 79,5 м², 9/9 эт.
Елизаровская
8 мин.







4-комн. квартира, 81,2 м², 16/23 эт.
Елизаровская
17 мин.






4-комн. квартира, 82,3 м², 12/18 эт.
Елизаровская
17 мин.
Консультант по новостройкам
27 597 630 ₽
311 135 ₽/м²













