Продается 3-комн. квартира, 50.57 м²
Россия, Санкт-Петербург, Белоостровская улица, 7
Лесная
9 мин.
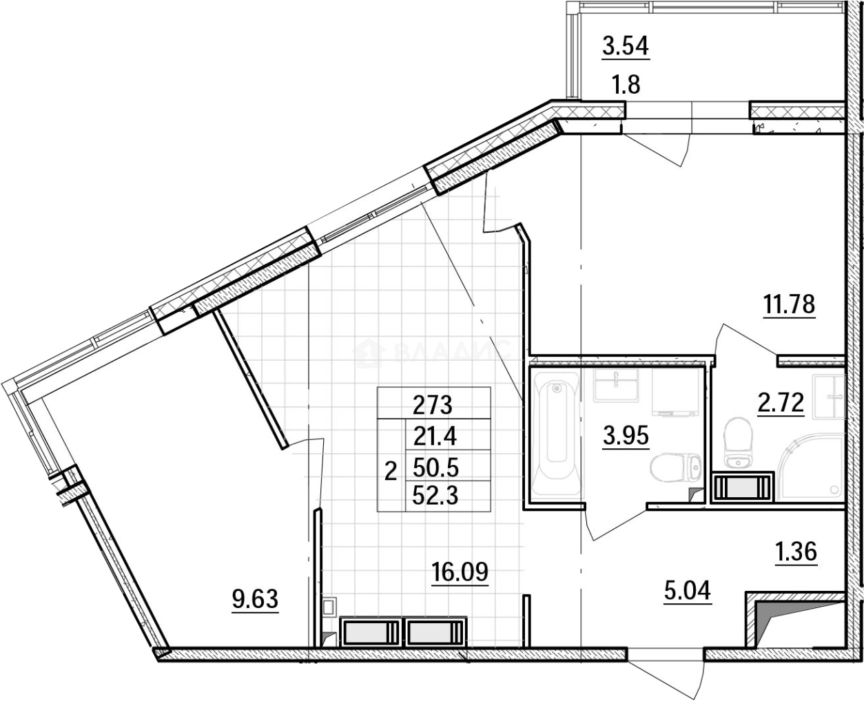
50.57 м²
Общая площадь
21.41 м²
Жилая площадь
16.09 м²
Площадь кухни
11 из 11
Этаж
Описание
Всего запроектировано 535 квартир различных планировочных решений: в наличии квартиры, как классического типа, так и европланировки. В них предусмотрены прачечные, гардеробные, балконы, лоджии и террасы. Квартиры сдаются без отделки и высотой потолков 2,85 метра.
Для автовладельцев предусмотрен подземный отапливаемый паркинг на 381 место с доступом на лифте, расположенный в стилобатной части ЖК. Территория комплекса закрыта от автомобилей и случайных прохожих, ведется круглосуточное видеонаблюдение и работает служба охраны. Во дворе выполнен ландшафтный дизайн от компании «DEREVOPARK» с детской площадкой и зонами отдыха по индивидуальному проекту.
ЖК «Белый Остров» расположен в Приморском районе на Белоостровской улице. Метро «Лесная» находится в 900 метрах.
О квартире
Общая площадь
50.57 м²
Жилая площадь
21.41 м²
Площадь кухни
16.09 м²
Площадь комнат
9.63+11.78 м²
Подъезд
1
Этаж
11
Окна выходят
На улицу
О доме
Год постройки
2022
Этажность
11
Материал постройки
Монолитный
Материал перекрытий
Монолитные
Отопление
Центральное
Пассажирских лифтов
1
Грузовых лифтов
1
Парковка
Подземная
Расположение
Россия, Санкт-Петербург, Белоостровская улица, 7
Лесная
9 мин.
Чёрная речка
20 мин.
Выборгская
23 мин.
Петроградская
29 мин.
Площадь Мужества
4 мин.
Пионерская
4 мин.
Горьковская
5 мин.
Политехническая
5 мин.
Ипотечный калькулятор
Заполните 1 анкету — получите предложения от десятков банков на специальных условиях
Программа ипотеки
Стоимость жилья, ₽
Первый взнос, ₽
Срок кредита
от 5.75%
Ставка
от 97 885 ₽
Платеж в месяц
Расчёт носит информационный характер и не является публичной офертой
Похожие объекты









2-комн. квартира, 56,9 м², 8/6 эт.
Политехническая
14 мин.









2-комн. квартира, 56,8 м², 6/6 эт.
Политехническая
14 мин.








2-комн. квартира, 56,8 м², 3/6 эт.
Политехническая
14 мин.









2-комн. квартира, 58,1 м², 1/6 эт.
Политехническая
14 мин.
Консультант по новостройкам
15 559 250 ₽
307 678 ₽/м²

















