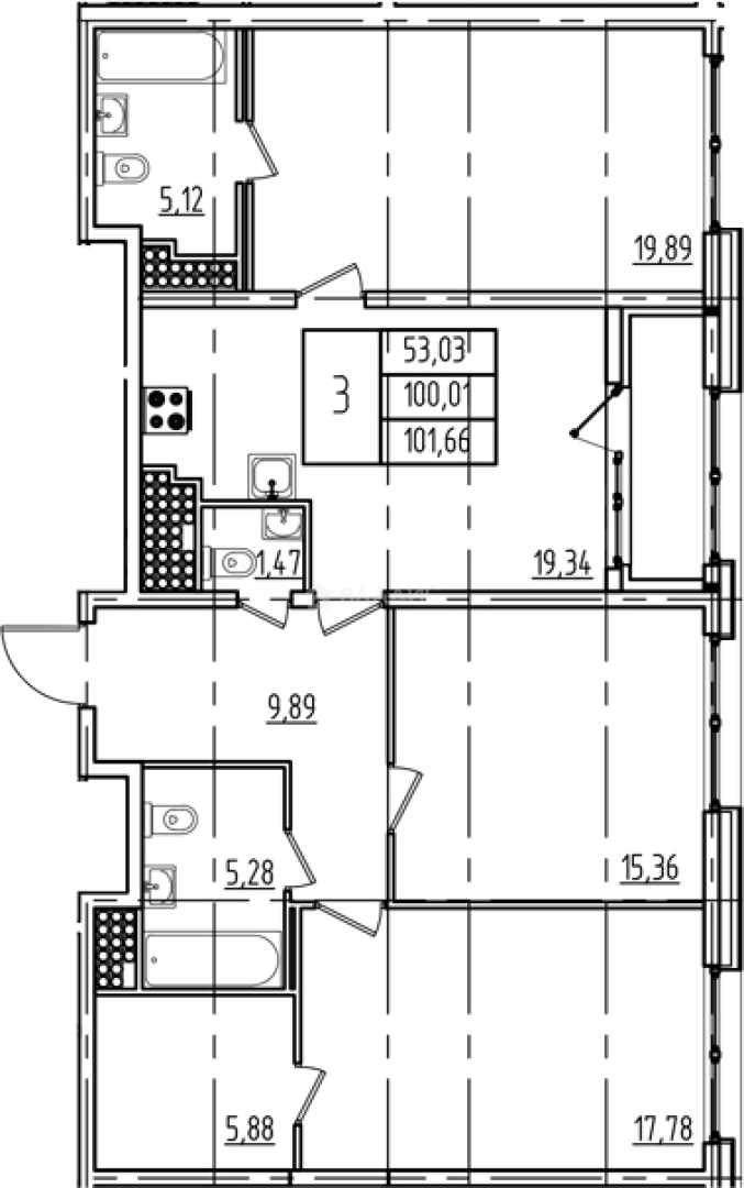
Продается 4-комн. квартира, 100.01 м²
Россия, Санкт-Петербург, улица Типанова, 22
Московская
15 мин.
100.01 м²
Общая площадь
53.03 м²
Жилая площадь
19.34 м²
Площадь кухни
19 из 23
Этаж
Описание
Покупателям предложено множество планировочных решений: в наличии квартиры, как классического типа, так и европланировки. А верхние этажи займут пентхаусы. Квартиры передаются без отделки.
ЖК находится в престижном Московском районе с развитой инфраструктурой. На территории комплекса расположен собственный променад с фонтаном. Для владельцев автомобилей здесь предусмотрен двухуровневый подземный паркинг на 1142 мест.
В пешей доступности находится ТРК «Питер», гипермаркеты — «О'КЕЙ» и «Лента». До станции метро «Московская» 15 минут пешком, выезд на КАД в 15 минутах транспортом.
О квартире
Общая площадь
100.01 м²
Жилая площадь
53.03 м²
Площадь кухни
19.34 м²
Площадь комнат
15.36+17.78+19.89 м²
Высота потолков
3 м
Подъезд
3
Этаж
19
Окна выходят
На улицу
О доме
Год постройки
2025
Этажность
23
Материал постройки
Кирпично-монолитный
Материал перекрытий
Монолитные
Отопление
Центральное
Пассажирских лифтов
1
Грузовых лифтов
1
Парковка
Подземная
Расположение
Россия, Санкт-Петербург, улица Типанова, 22
Московская
15 мин.
Парк Победы
25 мин.
Звёздная
25 мин.
Международная
4 мин.
Проспект Славы
4 мин.
Купчино
4 мин.
Электросила
5 мин.
Бухарестская
6 мин.
Ипотечный калькулятор
Заполните 1 анкету — получите предложения от десятков банков на специальных условиях
Программа ипотеки
Стоимость жилья, ₽
Первый взнос, ₽
Срок кредита
от 5.75%
Ставка
от 186 090 ₽
Платеж в месяц
Расчёт носит информационный характер и не является публичной офертой
Похожие объекты








4-комн. квартира, 113,5 м², 11/19 эт.
Московская
14 мин.








4-комн. квартира, 114,4 м², 3/19 эт.
Московская
14 мин.








4-комн. квартира, 113,5 м², 12/19 эт.
Московская
14 мин.








4-комн. квартира, 113,5 м², 19/19 эт.
Московская
14 мин.
Консультант по новостройкам
29 580 000 ₽
295 771 ₽/м²















