Продается 5-комн. квартира, 179.5 м²
Россия, Санкт-Петербург, улица Типанова, 22
Московская
15 мин.
179.5 м²
Общая площадь
87.6 м²
Жилая площадь
47.57 м²
Площадь кухни
17 из 23
Этаж
Описание
Покупателям предложено множество планировочных решений: в наличии квартиры, как классического типа, так и европланировки. А верхние этажи займут пентхаусы. Квартиры передаются без отделки.
ЖК находится в престижном Московском районе с развитой инфраструктурой. На территории комплекса расположен собственный променад с фонтаном. Для владельцев автомобилей здесь предусмотрен двухуровневый подземный паркинг на 1142 мест.
В пешей доступности находится ТРК «Питер», гипермаркеты — «О'КЕЙ» и «Лента». До станции метро «Московская» 15 минут пешком, выезд на КАД в 15 минутах транспортом.
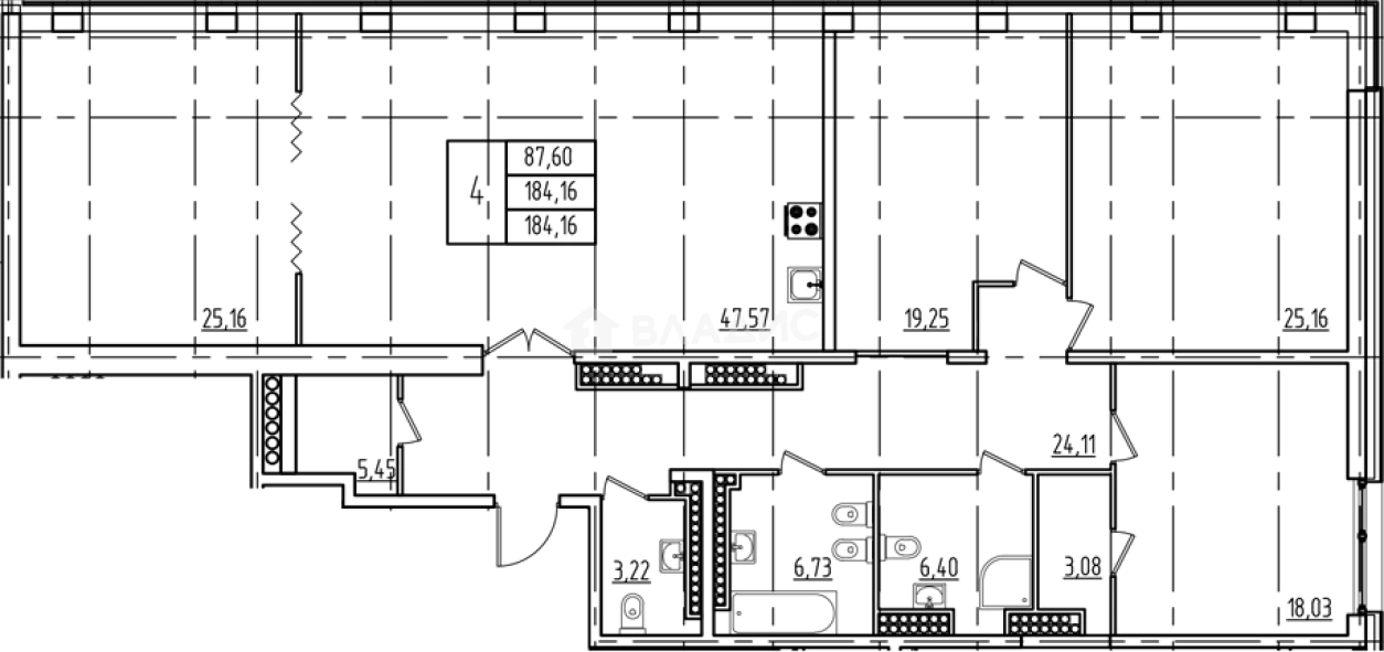
О квартире
Общая площадь
179.5 м²
Жилая площадь
87.6 м²
Площадь кухни
47.57 м²
Площадь комнат
25.16+19.25+25.16+18.03 м²
Высота потолков
2.75 м
Подъезд
4
Этаж
17
Окна выходят
На улицу
О доме
Год постройки
2025
Этажность
23
Материал постройки
Кирпично-монолитный
Материал перекрытий
Монолитные
Отопление
Центральное
Пассажирских лифтов
1
Грузовых лифтов
1
Парковка
Подземная
Расположение
Россия, Санкт-Петербург, улица Типанова, 22
Московская
15 мин.
Парк Победы
25 мин.
Звёздная
25 мин.
Международная
4 мин.
Проспект Славы
4 мин.
Купчино
4 мин.
Электросила
5 мин.
Бухарестская
6 мин.
Ипотечный калькулятор
Заполните 1 анкету — получите предложения от десятков банков на специальных условиях
Программа ипотеки
Стоимость жилья, ₽
Первый взнос, ₽
Срок кредита
от 5.75%
Ставка
от 327 482 ₽
Платеж в месяц
Расчёт носит информационный характер и не является публичной офертой
Похожие объекты








5-комн. квартира, 182,3 м², 19/23 эт.
Московская
15 мин.








5-комн. квартира, 182,8 м², 19/23 эт.
Московская
15 мин.








5-комн. квартира, 181,9 м², 18/23 эт.
Московская
15 мин.








5-комн. квартира, 180,8 м², 17/23 эт.
Московская
15 мин.
Консультант по новостройкам
52 055 000 ₽
290 000 ₽/м²









