Продается 2-комн. квартира, 37.41 м²
Россия, Санкт-Петербург, Невский район, жилой комплекс Зум на Неве
Елизаровская
16 мин.
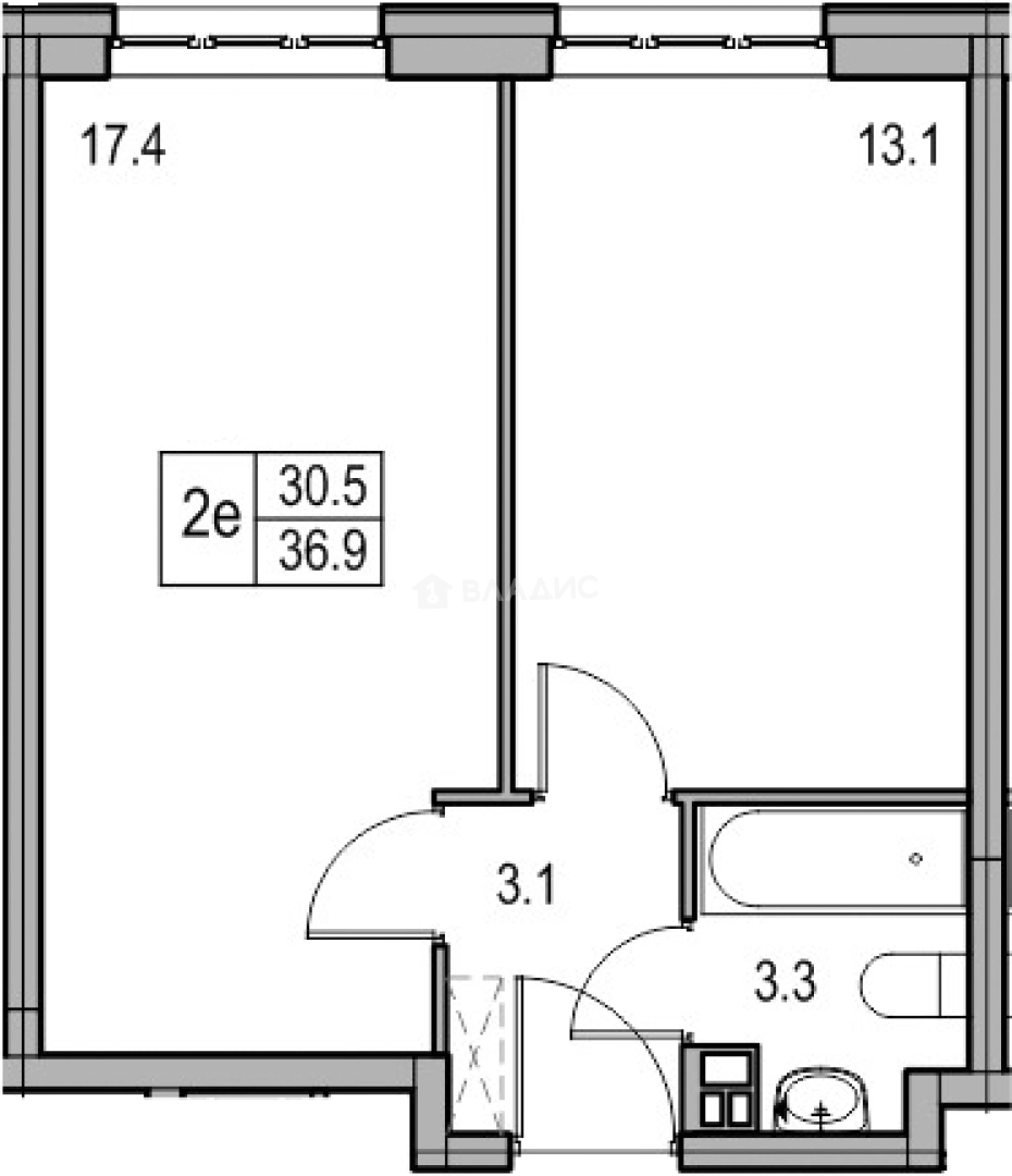
37.41 м²
Общая площадь
13.08 м²
Жилая площадь
17.03 м²
Площадь кухни
6 из 11
Этаж
Описание
В комплексе «Zoom на Неве» предложено множество планировочных решений: в наличии квартиры, как классического типа, так и европланировки. Сдаются они с подчистовой отделкой и высотой потолков от 2,7 метров. Из окон открываются прекрасные виды на воду и центр города.
В проекте «Zoom на Неве» предусмотрена концепция двор без машин. На закрытой территории ведется постоянное видеонаблюдение. Благоустройство территории включает зоны отдыха, детские и спортивные площадки. Для владельцев автомобилей предусмотрен подземный отапливаемый паркинг с прямым доступом на лифте.
Комплекс апартаментов «Zoom на Неве» расположен на первой линии Октябрьской набережной в Невском районе. На автомобиле 12 минут до КАД и 10 минут до центра. Метро «Улица Дыбенко» — 10 минут транспортом. Набережная Невы находится в буквальном смысле в минуте ходьбы от комплекса. Рядом с проектом есть крупные торговые комплексы — «Лондон-Молл» и ТК «Невский». В шаговой доступности находится парк Строителей, где есть все для отдыха и занятий спортом.
О квартире
Общая площадь
37.41 м²
Жилая площадь
13.08 м²
Площадь кухни
17.03 м²
Площадь комнат
13.08 м²
Высота потолков
2.74 м
Подъезд
2
Этаж
6
Окна выходят
На улицу
О доме
Год постройки
2025
Этажность
11
Материал постройки
Кирпично-монолитный
Материал перекрытий
Монолитные
Отопление
Центральное
Пассажирских лифтов
1
Грузовых лифтов
1
Парковка
Подземная
Расположение
Россия, Санкт-Петербург, Невский район, жилой комплекс Зум на Неве
Елизаровская
16 мин.
Улица Дыбенко
27 мин.
Проспект Большевиков
28 мин.
Ломоносовская
4 мин.
Ладожская
5 мин.
Новочеркасская
5 мин.
Ипотечный калькулятор
Заполните 1 анкету — получите предложения от десятков банков на специальных условиях
Программа ипотеки
Стоимость жилья, ₽
Первый взнос, ₽
Срок кредита
от 5.75%
Ставка
от 40 956 ₽
Платеж в месяц
Расчёт носит информационный характер и не является публичной офертой
Похожие объекты











Студия, 32,5 м², 10/13 эт.
Ломоносовская
16 мин.











1-комн. квартира, 35,2 м², 13/13 эт.
Ломоносовская
15 мин.







2-комн. квартира, 37,4 м², 4/11 эт.
Елизаровская
16 мин.







2-комн. квартира, 36,0 м², 2/11 эт.
Елизаровская
16 мин.
Консультант по новостройкам
6 510 088 ₽
174 020 ₽/м²








