Продается 4-комн. квартира, 129.17 м²
Россия, Санкт-Петербург, Петровский проспект, 22к2
Крестовский остров
16 мин.
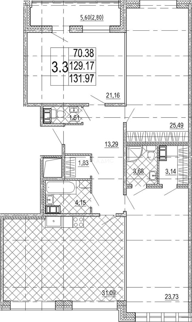
129.17 м²
Общая площадь
70.38 м²
Жилая площадь
31.09 м²
Площадь кухни
7 из 8
Этаж
Описание
В доме предусмотрена многоступенчатая очистка воды и бесшумные лифты с отделкой класса «люкс» европейских производителей. Для автовладельцев предусмотрен двухуровневый отапливаемый подземный паркинг. На закрытой территории реализована уникальная концепция благоустройства «ДОМ И ПАРК» с зелеными зонами, деревьями и кустарниками, архитектурным дизайном и местами для отдыха и прогулок. На первых этажах расположены коммерческие помещения, отделенные от жилой части, чтобы исключить присутствие на территории дома посторонних лиц.
Жилой комплекс расположен на Петровском острове в районе с развитой инфраструктурой: здесь находятся детские сады, школы магазины, спортивные центры, яхт-клуб и стадион «Петровский». В районе ЖК отсутствует транспортная загруженность дорог, а в пешей доступности находится Большой Петровский парк с прудом и зонами отдыха. В 10 минутах пешком расположены парки Крестовского острова, в 20 минутах пешком – метро «Крестовский остров».
О квартире
Общая площадь
129.17 м²
Жилая площадь
70.38 м²
Площадь кухни
31.09 м²
Площадь комнат
23.73+25.49+21.16 м²
Высота потолков
3 м
Подъезд
6
Этаж
7
Окна выходят
На улицу
О доме
Год постройки
2021
Этажность
8
Материал постройки
Монолитный
Материал перекрытий
Монолитные
Отопление
Центральное
Парковка
Подземная
Расположение
Россия, Санкт-Петербург, Петровский проспект, 22к2
Крестовский остров
16 мин.
Чкаловская
20 мин.
Спортивная
23 мин.
Приморская
25 мин.
Василеостровская
26 мин.
Петроградская
4 мин.
Зенит
4 мин.
Горьковская
5 мин.
Ипотечный калькулятор
Заполните 1 анкету — получите предложения от десятков банков на специальных условиях
Программа ипотеки
Стоимость жилья, ₽
Первый взнос, ₽
Срок кредита
от 5.75%
Ставка
от 392 044 ₽
Платеж в месяц
Расчёт носит информационный характер и не является публичной офертой
Похожие объекты










4-комн. квартира, 111,7 м², 2/9 эт.
Чкаловская
8 мин.










4-комн. квартира, 111,5 м², 3/9 эт.
Чкаловская
8 мин.









4-комн. квартира, 111,7 м², 2/9 эт.
Чкаловская
8 мин.






3-комн. квартира, 117,6 м², 5/7 эт.
Василеостровская
7 мин.
Консультант по новостройкам
62 317 557 ₽
482 447 ₽/м²


















