Продается 3-комн. квартира, 87.1 м²
Россия, Санкт-Петербург, Пушкинский район, посёлок Шушары
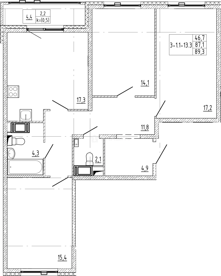
87.1 м²
Общая площадь
46.7 м²
Жилая площадь
17.3 м²
Площадь кухни
11 из 12
Этаж
Описание
В жилом комплексе «Монография» предложено множество планировочных решений: в наличии квартиры, как классического типа, так и с большой кухней-гостиной. Сдаются они с чистовой отделкой, либо без отделки и высотой потолков 2,72 метра.
В проекте «Монография» предусмотрены детские и спортивные площадки, места для отдыха, велопарковки, система видеонаблюдения по всей территории и круглосуточная диспетчерская служба. На первых этажах разместились коммерческие помещения. Для владельцев автомобилей предусмотрена стоянка.
ЖК «Монография» находится в Пушкинском районе. В пешей доступности находятся детские сады, школы, магазины, медицинские учреждения. До метро «Купчино» — 15 минут транспортом.
О квартире
Общая площадь
87.1 м²
Жилая площадь
46.7 м²
Площадь кухни
17.3 м²
Площадь комнат
17.2+14.1+15.4 м²
Высота потолков
2.7199999999999998 м
Подъезд
3
Этаж
11
Окна выходят
На улицу
О доме
Год постройки
2025
Этажность
12
Материал постройки
Монолитный
Материал перекрытий
Монолитные
Отопление
Центральное
Парковка
Наземная
Расположение
Россия, Санкт-Петербург, Пушкинский район, посёлок Шушары
Ипотечный калькулятор
Заполните 1 анкету — получите предложения от десятков банков на специальных условиях
Программа ипотеки
Стоимость жилья, ₽
Первый взнос, ₽
Срок кредита
от 5.75%
Ставка
от 114 309 ₽
Платеж в месяц
Расчёт носит информационный характер и не является публичной офертой
Похожие объекты



3-комн. квартира, 87,1 м², 5/12 эт.



3-комн. квартира, 87,1 м², 8/12 эт.



3-комн. квартира, 87,1 м², 3/12 эт.
Консультант по новостройкам
18 170 036 ₽
208 612 ₽/м²




