Продается 5-комн. квартира, 120.85 м²
Россия, Санкт-Петербург, улица Маршала Захарова, 8
Проспект Ветеранов
9 мин.
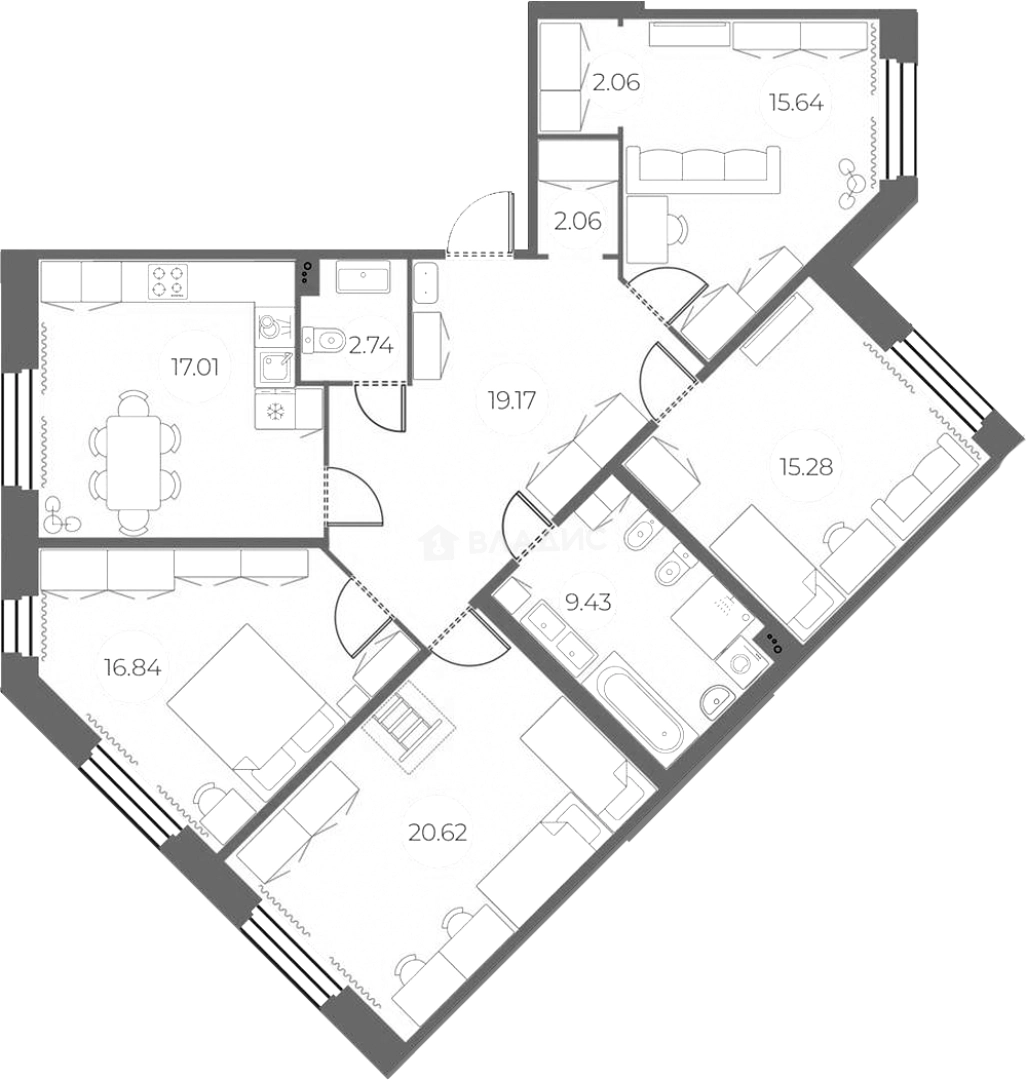
120.85 м²
Общая площадь
68.38 м²
Жилая площадь
17.01 м²
Площадь кухни
2 из 20
Этаж
Описание
В проекте «Огни залива» предложено множество планировочных решений: в наличии квартиры, как классического типа, так и европланировки. На площадке расположено от 2 до 5 квартир. Сдаются они без отделки и с чистовой отделкой, высота потолков составляет 2,74 метра. На верхних этажах запроектированы 2-х этажные квартиры с террасами. Из окон квартир открывается прекрасный вид на акваторию Дудергофского и Матисова каналов.
На территории жилого комплекса «Огни залива» запроектированы 5 детских садов, 2 школы, детская поликлиника, подземные паркинги, места отдыха, магазины и кафе, велодорожка, детские и спортивные площадки. За чистоту и порядок отвечает собственная управляющая компания.
Жилой комплекс расположен в Красносельском районе. В пешей доступности работают школы, детские сады, медицинские центры, яхт-клуб и ТЦ «Жемчужная Плаза». В районе находятся пять парков: Южно-Приморский, «Новознаменка», «Сосновая Поляна», Полежаевский и «Александрино». Выезды на КАД и ЗСД расположены в 10 минутах транспортом, метро «Ленинский проспект» и «Проспект Ветеранов» — в 15 минутах.
О квартире
Общая площадь
120.85 м²
Жилая площадь
68.38 м²
Площадь кухни
17.01 м²
Площадь комнат
16.84+20.62+15.28+15.64 м²
Высота потолков
2.74 м
Подъезд
1
Этаж
2
Окна выходят
На улицу
О доме
Год постройки
2023
Этажность
20
Материал постройки
Монолитный
Материал перекрытий
Монолитные
Отопление
Центральное
Парковка
Наземная
Расположение
Россия, Санкт-Петербург, улица Маршала Захарова, 8
Проспект Ветеранов
9 мин.
Автово
9 мин.
Кировский завод
10 мин.
Ленинский проспект
10 мин.
Нарвская
12 мин.
Электросила
14 мин.
Парк Победы
14 мин.
Московская
15 мин.
Ипотечный калькулятор
Заполните 1 анкету — получите предложения от десятков банков на специальных условиях
Программа ипотеки
Стоимость жилья, ₽
Первый взнос, ₽
Срок кредита
от 5.75%
Ставка
от 171 747 ₽
Платеж в месяц
Расчёт носит информационный характер и не является публичной офертой
Похожие объекты









5-комн. квартира, 120,1 м², 5/20 эт.
Проспект Ветеранов
9 мин.







5-комн. квартира, 109,6 м², 4/22 эт.
Автово
9 мин.







5-комн. квартира, 109,6 м², 3/22 эт.
Автово
9 мин.







5-комн. квартира, 109,6 м², 14/22 эт.
Автово
9 мин.
Консультант по новостройкам
27 300 000 ₽
225 900 ₽/м²















