Продается 2-комн. квартира, 30.4 м²
Россия, Санкт-Петербург, Московский проспект, 71к2
Фрунзенская
1 мин.
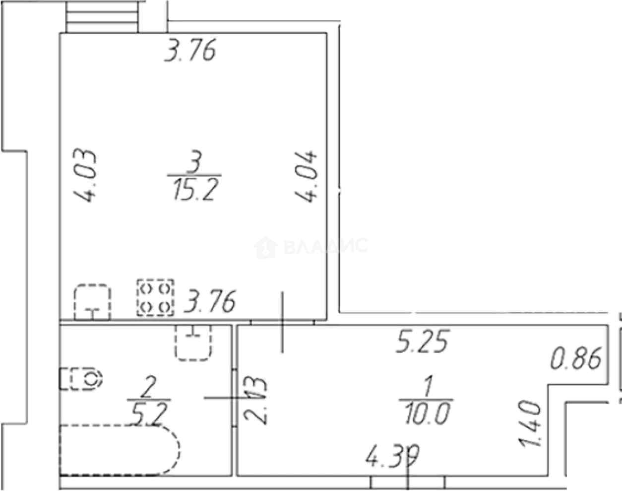
30.4 м²
Общая площадь
10 м²
Жилая площадь
15.2 м²
Площадь кухни
2 из 15
Этаж
Описание
Квартиры в Promenade представлены как классическими видами планировок от одной до пяти комнат, так и европланировками. В них предусмотрены просторные застекленные террасы, лоджии и эркеры. На последних этажах представлены квартиры формата HIGH FLAT с высотой потолков 3м.
На территории комплекса реализована концепция двор без машин и многоуровневая система безопасности. Для автовладельцев предусмотрен подземный паркинг на 234 места. Придомовая территория благоустроена во французском стиле ландшафтным дизайном, местами для отдыха, пешеходными зонами с фонтанами и безопасными детскими игровыми площадками.
ЖК Promenade находится в Адмиралтейском районе. Рядом находятся школы, гимназии, поликлиники и банки. Исторические достопримечательности города находятся в шаговой доступности. Метро Фрунзенская расположена в 5 минутах пешком. До Московского вокзала на автомобиле можно доехать за 15 минут.
О квартире
Общая площадь
30.4 м²
Жилая площадь
10 м²
Площадь кухни
15.2 м²
Площадь комнат
10 м²
Высота потолков
2.8 м
Этаж
2
Окна выходят
На улицу
О доме
Год постройки
2024
Этажность
15
Материал постройки
Кирпично-монолитный
Материал перекрытий
Монолитные
Отопление
Своя котельная
Расположение
Россия, Санкт-Петербург, Московский проспект, 71к2
Фрунзенская
1 мин.
Балтийская
11 мин.
Московские ворота
19 мин.
Звенигородская
22 мин.
Пушкинская
22 мин.
Обводный Канал
25 мин.
Ипотечный калькулятор
Заполните 1 анкету — получите предложения от десятков банков на специальных условиях
Программа ипотеки
Стоимость жилья, ₽
Первый взнос, ₽
Срок кредита
от 5.75%
Ставка
от 55 752 ₽
Платеж в месяц
Расчёт носит информационный характер и не является публичной офертой
Похожие объекты





Студия, 26,4 м², 3/16 эт.
Московские ворота
3 мин.





Студия, 26,7 м², 11/16 эт.
Московские ворота
3 мин.





Студия, 26,4 м², 3/16 эт.
Московские ворота
3 мин.





Студия, 26,7 м², 13/16 эт.
Московские ворота
3 мин.
Консультант по новостройкам
8 861 980 ₽
291 513 ₽/м²














