Продается Студия, 39.8 м²
Россия, Санкт-Петербург, Зеленогорск, Приморское шоссе, 570Л
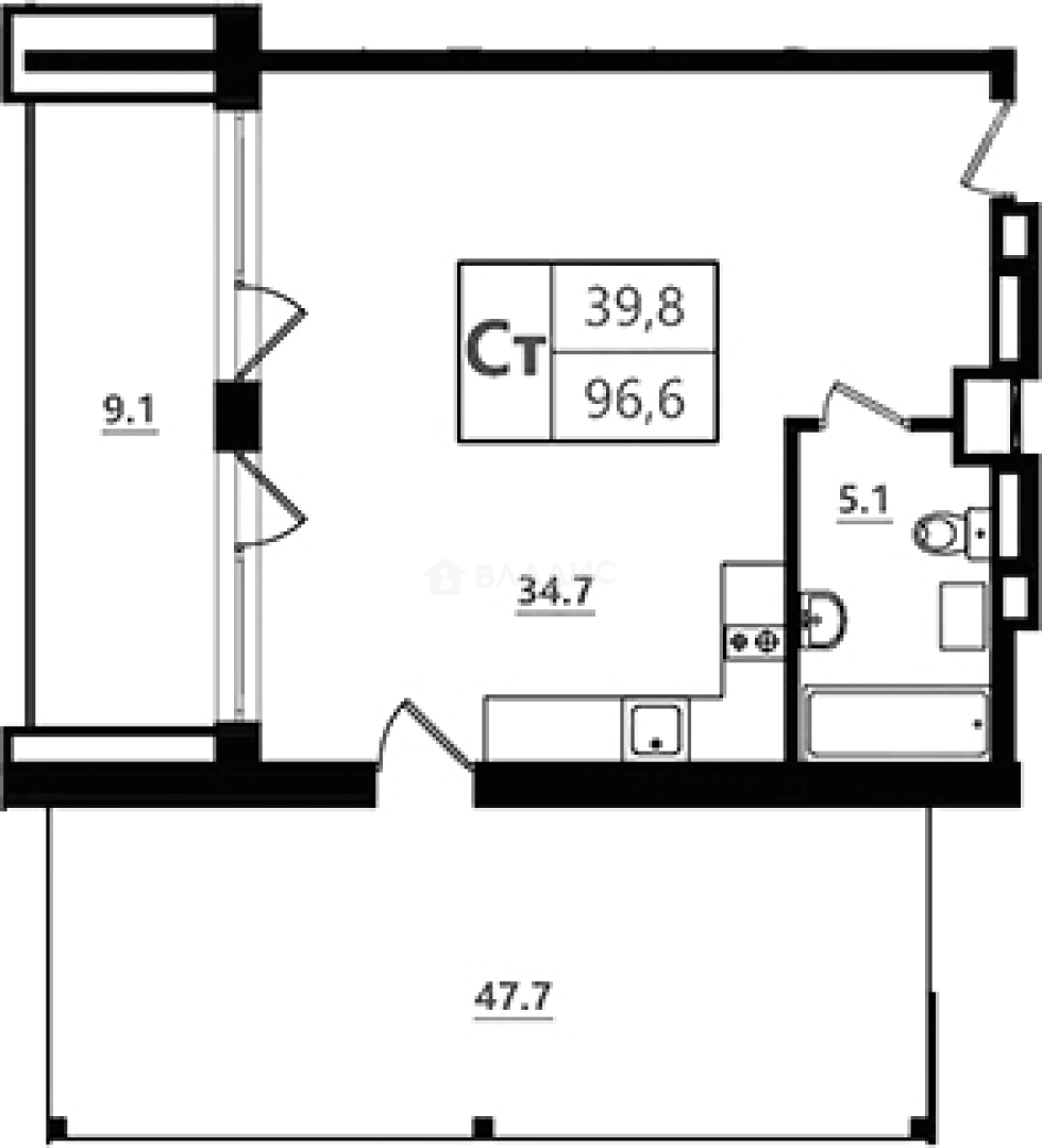
39.8 м²
Общая площадь
34.7 м²
Жилая площадь
12 из 12
Этаж
Описание
В проекте 254 юнита с уникальными видовыми характеристиками: из окон открывается завораживающий вид на Финский залив и многовековой зеленый массив. В аппартаментах предусмотрено панорамное остекление балконов. На последних этажах спроектированы юниты с видовыми террасами.
Жилой комплекс «Морская Ривьера» реализован по концепции «двор без машин». На придомовой территории проекта расположен открытый бассейн с подогревом, бар, беседки для гриля и барбекю, площадка для фитнеса, зона занятия йогой, теннисный корт, воркаут зона, а также детские площадки разделенные по возрастам. Территория комплекса огорожена, на ней ведется видеонаблюдение. Для владельцев автомобилей предусмотрен наземный охраняемый паркинг, на котором можно оставить катер или прицеп.
Жилой комплекс «Морская Ривьера» находится в Курортном районе. В 5 минутах пешком расположен Финский залив. До метро «Беговая» и «Комендантский проспект» — 40 минут транспортом.
О квартире
Общая площадь
39.8 м²
Жилая площадь
34.7 м²
Площадь комнат
34.7 м²
Высота потолков
2.95 м
Этаж
12
Окна выходят
На улицу
О доме
Год постройки
2022
Этажность
12
Материал постройки
Кирпично-монолитный
Материал перекрытий
Монолитные
Отопление
Центральное
Парковка
Наземная
Расположение
Россия, Санкт-Петербург, Зеленогорск, Приморское шоссе, 570Л
Ипотечный калькулятор
Заполните 1 анкету — получите предложения от десятков банков на специальных условиях
Программа ипотеки
Стоимость жилья, ₽
Первый взнос, ₽
Срок кредита
от 5.75%
Ставка
от 277 861 ₽
Платеж в месяц
Расчёт носит информационный характер и не является публичной офертой
Консультант по новостройкам
44 167 549 ₽
1 109 738 ₽/м²











