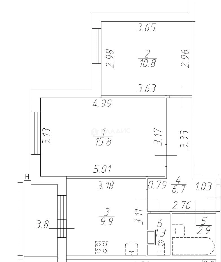
Продается 2-комн. квартира, 47.4 м²
Россия, Санкт-Петербург, Орбитальная улица, 5
Звёздная
13 мин.
47.4 м²
Общая площадь
26.6 м²
Жилая площадь
9.9 м²
Площадь кухни
1 из 5
Этаж
Описание
Полная стоимость в договоре!
ЖК "Зеленый квартал" от ведущего застройщика Санкт-Петербурга.
Малоэтажные дома с городской пропиской, благоустроенными зелеными дворами, детскими
и спортивными площадками.
Закрытый двор с видеонаблюдением и охраной.
Высокий 1-ый этаж.
Просторная 2-комнатная квартира:
2 изолированные комнаты гостиная 15.8м2 и спальня 10,8м2
Кухня правильной формы с выходом на балкон.
Балкон 3.8 м2 - НЕ ВХОДИТ в общую площадь.
Новому собственнику останется стильный кухонный гарнитур со встроенной техникой:
варочная панель, микроволновая печь, вытяжка.
Также останется стиральная машина.
Инфраструктура:
- уже работают Детcкий cад и Общеобразовательная шкoла
- вторая школа — c углублeнным изучeниeм точных наук и астрономии - на финальном этапе постройки
- в пешей доступности - магазины, кафе, пекарня, аптеки, пункты выдачи интернет магазинов, медицинский центр и клиника для домашних питомцев
Впечатляет и благоустройство Жилого комплекса:
- пешеходные аллеи
- ECO - тропа почти 4 км
- на территории высажены кленовая, яблоневая и вишневая аллеи
- центр притяжения - площадь с еловым сквером и взрослой елью
Транспортная доступность:
- автобусная остановка в 2 минутах от парадной прямо около дома
- до ст метро Московская 20 минут
- аэропорт Пулково 10 минут
- удобные выезды на КАД и ЗСД
Прописка: Московский район, г. Санкт-Петербург
Звоните! Проведу показ и отвечу на все вопросы!
О квартире
Общая площадь
47.4 м²
Жилая площадь
26.6 м²
Площадь кухни
9.9 м²
Площадь комнат
15,8+10,8 м²
Высота потолков
2.77 м
Подъезд
2
Этаж
1
Расположение квартиры
не угловая
Окна выходят
На улицу
Раздельных санузлов
1
О доме
Год постройки
2022
Этажность
5
Материал постройки
Кирпично-монолитный
Материал перекрытий
Монолитные
Отопление
Своя котельная
Пассажирских лифтов
1
Парковка
Подземная
Расположение
Россия, Санкт-Петербург, Орбитальная улица, 5
Звёздная
13 мин.
Купчино
13 мин.
Шушары
14 мин.
Московская
15 мин.
Проспект Ветеранов
15 мин.
Дунайская
16 мин.
Ленинский проспект
16 мин.
Проспект Славы
18 мин.
Ипотечный калькулятор
Заполните 1 анкету — получите предложения от десятков банков на специальных условиях
Программа ипотеки
Стоимость жилья, ₽
Первый взнос, ₽
Срок кредита
от 5.75%
Ставка
от 62 911 ₽
Платеж в месяц
Расчёт носит информационный характер и не является публичной офертой
Предложите свою цену
10 000 000 ₽
210 970 ₽/м²
































