Продается 3-комн. квартира, 79.3 м²
Россия, Санкт-Петербург, Кубинская улица, 82к3с1
Московская
18 мин.
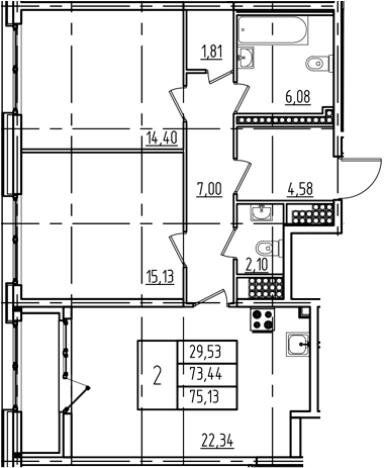
79.3 м²
Общая площадь
41.48 м²
Жилая площадь
14.36 м²
Площадь кухни
11 из 12
Этаж
Описание
В проекте предложено множество планировочных решений: в наличии квартиры, как классического типа, так и европланировки. Сдаются они без отделки, подчистовой и чистовой отделкой. Высота потолков от 2.75 метров.
Территория комплекса благоустроена и закрыта, на ней проведено озеленение и постоянно ведется видеонаблюдение. На придомовой территории выполнен ландшафтный дизайн, установлены детские и спортивные площадки с современным оборудованием, продуманы скамейки и прогулочные зоны. На первых этажах разместились коммерческие помещения. На территории комплекса построен свой детский сад на 100 мест. Для владельцев автомобилей предусмотрен подземный паркинг.
Жилой комплекс находится в Московском районе. Внешняя инфраструктура развита, в пешей доступности: магазины, кафе, детские сады, школы, медицинские учреждения, банкоматы. Метро «Московская» в 20 минутах пешком.
О квартире
Общая площадь
79.3 м²
Жилая площадь
41.48 м²
Площадь кухни
14.36 м²
Площадь комнат
13.07+14.05+14.36 м²
Высота потолков
2.75 м
Этаж
11
Окна выходят
На улицу
О доме
Год постройки
2024
Этажность
12
Материал постройки
Монолитный
Материал перекрытий
Монолитные
Отопление
Центральное
Расположение
Россия, Санкт-Петербург, Кубинская улица, 82к3с1
Московская
18 мин.
Ленинский проспект
29 мин.
Звёздная
4 мин.
Проспект Ветеранов
4 мин.
Парк Победы
5 мин.
Автово
6 мин.
Купчино
6 мин.
Электросила
7 мин.
Ипотечный калькулятор
Заполните 1 анкету — получите предложения от десятков банков на специальных условиях
Программа ипотеки
Стоимость жилья, ₽
Первый взнос, ₽
Срок кредита
от 5.75%
Ставка
от 139 162 ₽
Платеж в месяц
Расчёт носит информационный характер и не является публичной офертой
Похожие объекты








3-комн. квартира, 70,9 м², 11/19 эт.
Московская
14 мин.








3-комн. квартира, 70,9 м², 10/19 эт.
Московская
14 мин.








3-комн. квартира, 72,7 м², 20/23 эт.
Московская
15 мин.








3-комн. квартира, 73,4 м², 18/23 эт.
Московская
15 мин.
Консультант по новостройкам
22 120 532 ₽
278 948 ₽/м²










