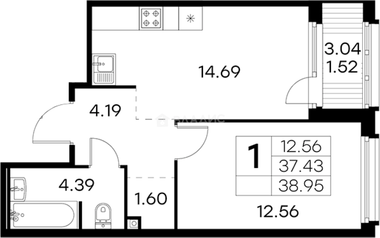
Продается 1-комн. квартира, 37.43 м²
Россия, Санкт-Петербург, посёлок Парголово, ЖК Глоракс Парголово
Парнас
6 мин.
37.43 м²
Общая площадь
12.56 м²
Жилая площадь
14.69 м²
Площадь кухни
14 из 15
Этаж
Описание
Рядом расположены места для отдыха на свежем воздухе : Шуваловский парк, Орловский заказник и Суздальские озера.
Архитектурный облик квартала отличается лаконичностью и современными решениями. Фасады жилых корпусов выполнены в спокойных оттенках, а цокольный этаж выделен контрастной плиткой. Внутренняя территория объединяет все секции и оборудована коммерческими помещениями на первых этажах. Квартиры представлены различными планировками, от студий до 3-комнатных, с чистовой отделкой в светлых и темных цветах.
Проект расположен в развитом районе с школами, детскими садами, медицинскими учреждениями и местами для развлечений.
О квартире
Общая площадь
37.43 м²
Жилая площадь
12.56 м²
Площадь кухни
14.69 м²
Площадь комнат
12.56 м²
Высота потолков
2.6 м
Этаж
14
Окна выходят
На улицу
О доме
Год постройки
2025
Этажность
15
Материал постройки
Кирпично-монолитный
Материал перекрытий
Монолитные
Отопление
Центральное
Парковка
Подземная
Расположение
Россия, Санкт-Петербург, посёлок Парголово, ЖК Глоракс Парголово
Парнас
6 мин.
Проспект Просвещения
6 мин.
Озерки
7 мин.
Удельная
9 мин.
Комендантский проспект
10 мин.
Пионерская
11 мин.
Старая Деревня
13 мин.
Политехническая
13 мин.
Ипотечный калькулятор
Заполните 1 анкету — получите предложения от десятков банков на специальных условиях
Программа ипотеки
Стоимость жилья, ₽
Первый взнос, ₽
Срок кредита
от 5.75%
Ставка
от 51 021 ₽
Платеж в месяц
Расчёт носит информационный характер и не является публичной офертой
Похожие объекты







1-комн. квартира, 32,4 м², 16/17 эт.
Комендантский проспект
6 мин.







1-комн. квартира, 35,1 м², 3/17 эт.
Комендантский проспект
6 мин.












1-комн. квартира, 36,0 м², 5/16 эт.
Парнас
6 мин.







1-комн. квартира, 32,8 м², 1/9 эт.
Проспект Просвещения
4 мин.
Консультант по новостройкам
8 109 999 ₽
216 672 ₽/м²






