Продается 3-комн. квартира, 77.15 м²
Россия, Санкт-Петербург, Петроградский район, муниципальный округ Чкаловское
Петроградская
12 мин.
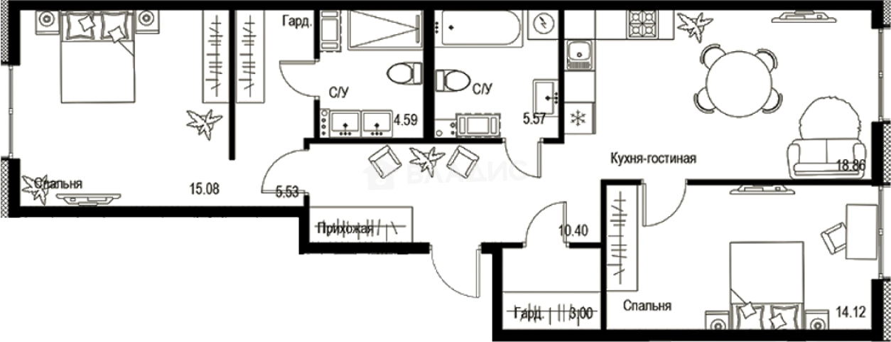
77.15 м²
Общая площадь
29.2 м²
Жилая площадь
18.86 м²
Площадь кухни
6 из 6
Этаж
Описание
В проекте предложено множество планировочных решений: от студий до 5-комнатых квартир, как классического типа, так и европланировки. Сдаются они с высотой потолков 3 метра, панорамными окнами и без отделки. В проекте предусмотрены квартиры с просторными гостиными, местами для хранения, с террасами и французскими балконами.
Секции клубного квартала формируют 2 внутренних полузакрытых двора и 3 парадных двора-курдонера, открытых на набережную р. Карповки. На территории комплекса спроектированы детские площадки, зоны для спорта, велосипедная дорожка, променад, благоустроенная набережная с причалом. Особый шарм придает сохраненная с императорских времен артезианская скважина. В проекте имеется собственный детский сад и начальная школа. Для жителей дома спроектированы индивидуальные кладовые, а для владельцев автомобилей предусмотрен подземный паркинг с прямым доступом на лифте.
Клубный квартал расположен в Петроградском районе между ул. Профессора Попова и р. Карповкой. Рядом с проектом находятся вузы, гимназия, поликлиника, больница, фитнес-клубы, множество садов и скверов. До метро «Петроградская» можно добраться за 10 минут пешком, до метро «Чкаловская» — за 20 минут.
О квартире
Общая площадь
77.15 м²
Жилая площадь
29.2 м²
Площадь кухни
18.86 м²
Площадь комнат
14.12+15.08 м²
Высота потолков
3 м
Этаж
6
Окна выходят
На улицу
О доме
Год постройки
2030
Этажность
6
Материал постройки
Монолитный
Парковка
Подземная
Расположение
Россия, Санкт-Петербург, Петроградский район, муниципальный округ Чкаловское
Петроградская
12 мин.
Чкаловская
14 мин.
Чёрная речка
20 мин.
Крестовский остров
25 мин.
Горьковская
26 мин.
Спортивная
26 мин.
Выборгская
4 мин.
Старая Деревня
4 мин.
Ипотечный калькулятор
Заполните 1 анкету — получите предложения от десятков банков на специальных условиях
Программа ипотеки
Стоимость жилья, ₽
Первый взнос, ₽
Срок кредита
от 5.75%
Ставка
от 339 749 ₽
Платеж в месяц
Расчёт носит информационный характер и не является публичной офертой
Похожие объекты






2-комн. квартира, 81,6 м², 5/8 эт.
Петроградская
6 мин.






2-комн. квартира, 80,9 м², 6/8 эт.
Петроградская
6 мин.








3-комн. квартира, 67,8 м², 7/9 эт.
Чкаловская
4 мин.






3-комн. квартира, 69,6 м², 6/6 эт.
Петроградская
12 мин.
Консультант по новостройкам
54 005 000 ₽
700 000 ₽/м²














