Продается 4-комн. квартира, 85.77 м²
Россия, Санкт-Петербург, Кожевенная линия, 39к5
Горный институт
16 мин.
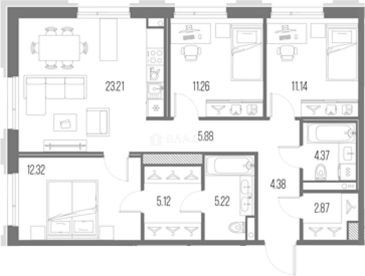
85.77 м²
Общая площадь
34.72 м²
Жилая площадь
23.21 м²
Площадь кухни
5 из 10
Этаж
Описание
В проекте предложено множество планировочных решений: квартиры-студии и эргономичные квартиры различной комнатности. Сдаются они с подчистовой отделкой, увеличенными окнами и высотой потолков 2.7 метров, а на последнем этаже – 3 метра.
Территория комплекса благоустроена: выполнено фактурное озеленение, спроектированы места отдыха взрослых и детей, имеется протяженная прогулочная зона с разнообразным инфраструктурным наполнением.
Жилой комплекс расположен в Василеостровском районе. Рядом находятся Севкабель порт, Брусницин холл, Финский залив. До метро «Василеостровская» можно добраться за 10 минут на автомобиле.
О квартире
Общая площадь
85.77 м²
Жилая площадь
34.72 м²
Площадь кухни
23.21 м²
Площадь комнат
12.32+11.26+11.14 м²
Высота потолков
2.7 м
Этаж
5
Окна выходят
На улицу
О доме
Год постройки
2027
Этажность
10
Материал постройки
Монолитный
Парковка
Многоуровневая
Расположение
Россия, Санкт-Петербург, Кожевенная линия, 39к5
Горный институт
16 мин.
Приморская
4 мин.
Василеостровская
4 мин.
Нарвская
5 мин.
Балтийская
5 мин.
Спортивная
6 мин.
Садовая
6 мин.
Адмиралтейская
6 мин.
Ипотечный калькулятор
Заполните 1 анкету — получите предложения от десятков банков на специальных условиях
Программа ипотеки
Стоимость жилья, ₽
Первый взнос, ₽
Срок кредита
от 5.75%
Ставка
от 221 072 ₽
Платеж в месяц
Расчёт носит информационный характер и не является публичной офертой
Похожие объекты









2-комн. квартира, 81,2 м², 4/6 эт.
Василеостровская
6 мин.








3-комн. квартира, 77,1 м², 2/6 эт.
Василеостровская
6 мин.








3-комн. квартира, 74,2 м², 5/6 эт.
Василеостровская
6 мин.








3-комн. квартира, 89,1 м², 4/6 эт.
Василеостровская
6 мин.
Консультант по новостройкам
35 140 580 ₽
409 708 ₽/м²






