Продается 2-комн. квартира, 36.05 м²
Россия, Санкт-Петербург, территория Гавань
Горный институт
14 мин.
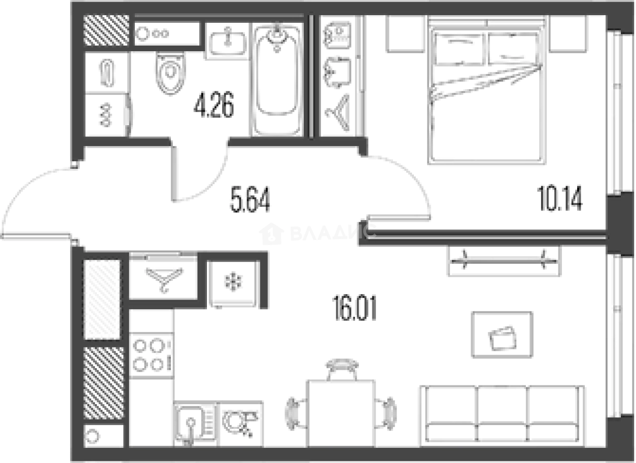
36.05 м²
Общая площадь
10.14 м²
Жилая площадь
16.01 м²
Площадь кухни
9 из 10
Этаж
Описание
В проекте предложено множество планировочных решений: квартиры-студии и эргономичные квартиры различной комнатности. Сдаются они с подчистовой отделкой, увеличенными окнами и высотой потолков 2.7 метров, а на последнем этаже – 3 метра.
Территория комплекса благоустроена: выполнено фактурное озеленение, спроектированы места отдыха взрослых и детей, имеется протяженная прогулочная зона с разнообразным инфраструктурным наполнением.
Жилой комплекс расположен в Василеостровском районе. Рядом находятся Севкабель порт, Брусницин холл, Финский залив. До метро «Василеостровская» можно добраться за 10 минут на автомобиле.
О квартире
Общая площадь
36.05 м²
Жилая площадь
10.14 м²
Площадь кухни
16.01 м²
Площадь комнат
10.14 м²
Высота потолков
2.7 м
Этаж
9
Окна выходят
На улицу
О доме
Год постройки
2027
Этажность
10
Материал постройки
Монолитный
Материал перекрытий
Монолитные
Отопление
Центральное
Парковка
Подземная
Расположение
Россия, Санкт-Петербург, территория Гавань
Горный институт
14 мин.
Приморская
4 мин.
Василеостровская
4 мин.
Нарвская
5 мин.
Балтийская
5 мин.
Спортивная
6 мин.
Садовая
6 мин.
Адмиралтейская
6 мин.
Ипотечный калькулятор
Заполните 1 анкету — получите предложения от десятков банков на специальных условиях
Программа ипотеки
Стоимость жилья, ₽
Первый взнос, ₽
Срок кредита
от 5.75%
Ставка
от 110 793 ₽
Платеж в месяц
Расчёт носит информационный характер и не является публичной офертой
Похожие объекты








Студия, 39,7 м², 5/6 эт.
Василеостровская
6 мин.







2-комн. квартира, 40,6 м², 2/12 эт.
Горный институт
13 мин.







2-комн. квартира, 39,2 м², 2/12 эт.
Горный институт
13 мин.






2-комн. квартира, 40,7 м², 5/12 эт.
Горный институт
13 мин.
Консультант по новостройкам
17 611 146 ₽
488 520 ₽/м²







