Продается 3-комн. квартира, 58.27 м²
Россия, Санкт-Петербург, территория Гавань
Горный институт
14 мин.
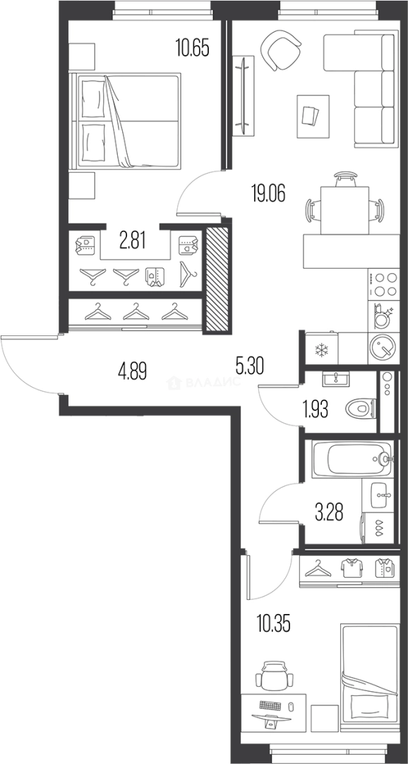
58.27 м²
Общая площадь
21 м²
Жилая площадь
19.06 м²
Площадь кухни
2 из 10
Этаж
Описание
В проекте предложено множество планировочных решений: квартиры-студии и эргономичные квартиры различной комнатности. Сдаются они с подчистовой отделкой, увеличенными окнами и высотой потолков 2.7 метров, а на последнем этаже – 3 метра.
Территория комплекса благоустроена: выполнено фактурное озеленение, спроектированы места отдыха взрослых и детей, имеется протяженная прогулочная зона с разнообразным инфраструктурным наполнением.
Жилой комплекс расположен в Василеостровском районе. Рядом находятся Севкабель порт, Брусницин холл, Финский залив. До метро «Василеостровская» можно добраться за 10 минут на автомобиле.
О квартире
Общая площадь
58.27 м²
Жилая площадь
21 м²
Площадь кухни
19.06 м²
Площадь комнат
10.65+10.35 м²
Высота потолков
2.7 м
Этаж
2
Окна выходят
На улицу
О доме
Год постройки
2027
Этажность
10
Материал постройки
Монолитный
Материал перекрытий
Монолитные
Отопление
Центральное
Парковка
Подземная
Расположение
Россия, Санкт-Петербург, территория Гавань
Горный институт
14 мин.
Приморская
4 мин.
Василеостровская
4 мин.
Нарвская
5 мин.
Балтийская
5 мин.
Спортивная
6 мин.
Садовая
6 мин.
Адмиралтейская
6 мин.
Ипотечный калькулятор
Заполните 1 анкету — получите предложения от десятков банков на специальных условиях
Программа ипотеки
Стоимость жилья, ₽
Первый взнос, ₽
Срок кредита
от 5.75%
Ставка
от 130 815 ₽
Платеж в месяц
Расчёт носит информационный характер и не является публичной офертой
Похожие объекты






2-комн. квартира, 53,7 м², 5/10 эт.
Балтийская
9 мин.






2-комн. квартира, 53,7 м², 6/10 эт.
Балтийская
9 мин.








2-комн. квартира, 59,7 м², 2/6 эт.
Василеостровская
6 мин.








Студия, 63,1 м², 4/6 эт.
Василеостровская
6 мин.
Консультант по новостройкам
20 793 650 ₽
356 851 ₽/м²






