Продается 4-комн. квартира, 91.78 м²
Россия, Санкт-Петербург, территория Шувалово, Береговая улица, 6
Проспект Просвещения
30 мин.
91.78 м²
Общая площадь
49.6 м²
Жилая площадь
23.1 м²
Площадь кухни
2 из 5
Этаж
Описание
В жилом комплексе предложено множество планировочных решений: в наличии квартиры, как классического типа, так и европланировки. Сдаются они без стен, с панорамными окнами и высотой потолков от 2,85 до 3 метров. В каждой квартире находится балкон шириной от 1,4 до 2 метров общей площадью от 7,5 до 9,5 метров. Все квартиры на 1-х этажах имеют выход на небольшой участок возле дома, огороженный живой изгородью.
У каждого дома есть своя закрытая охраняемая территория двора. На территории проекта спроектированы спортивная ворк-аут площадка с теннисным столом, зона с шезлонгами, территория для отдыха взрослых, место для работы и общения, детская площадка. Во дворах есть Wi-Fi зоны и пункты для зарядки электронных устройств. В ЖК предусмотрен подземный паркинг на 31 машиноместо и кладовые помещения площадью от 2,4 до 10,2 кв. метров.
Комплекс расположен в самой живописной и элитной части Выборгского района. Проект окружают парки и озера. Рядом есть городская инфраструктура, удобные выезды в центр города, на транспортную развязку КАД, в Курортный район. В шаговой доступности есть магазины, кафе, пункты выдачи интернет заказов, аптека и детский сад. В нескольких минутах транспортом располагается густонаселенная часть Выборгского района с чрезвычайно насыщенной инфраструктурой.
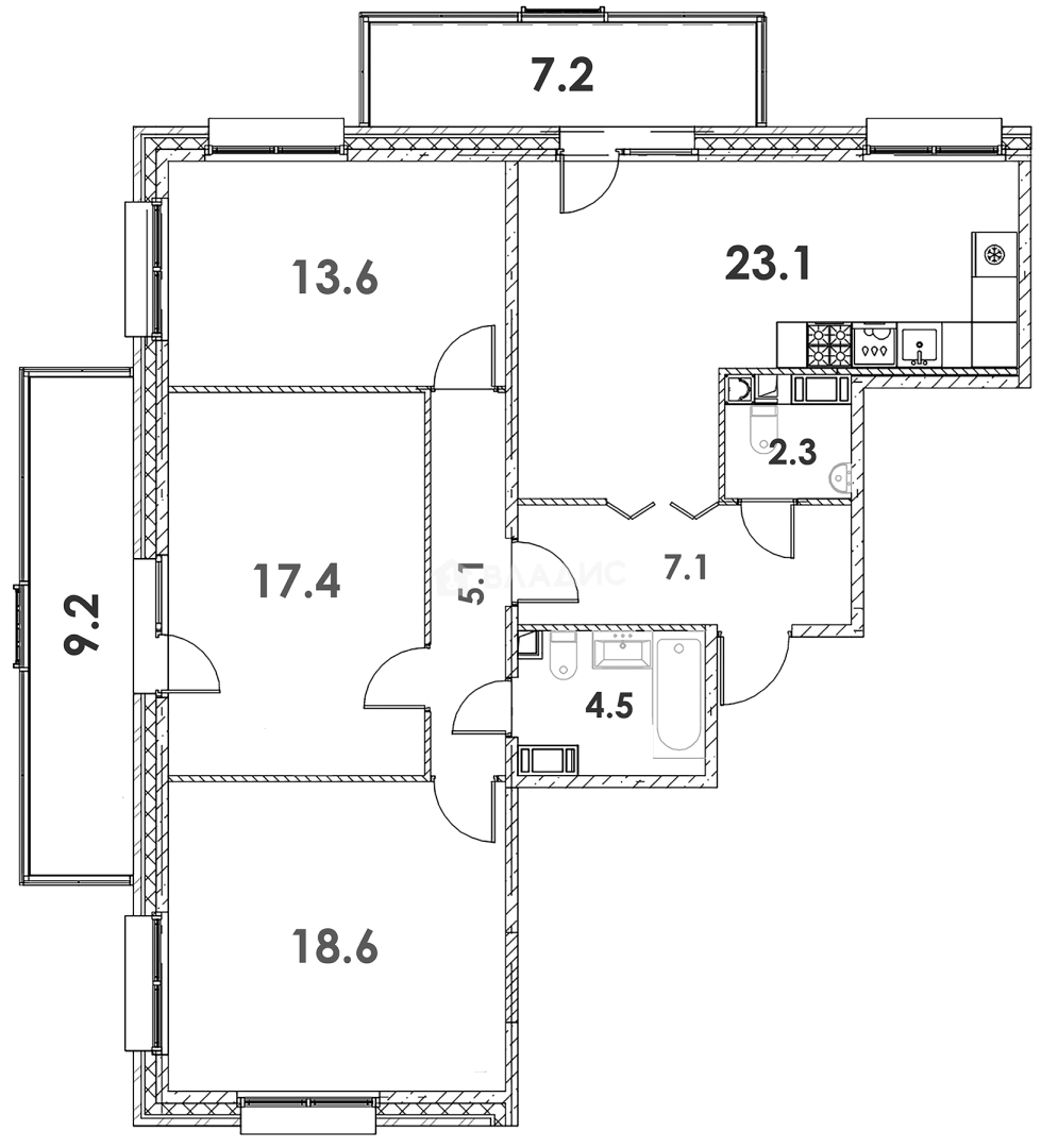
О квартире
Общая площадь
91.78 м²
Жилая площадь
49.6 м²
Площадь кухни
23.1 м²
Площадь комнат
13.6+17.4+18.6 м²
Высота потолков
2.85 м
Этаж
2
Окна выходят
На улицу
О доме
Год постройки
2024
Этажность
5
Материал постройки
Кирпично-монолитный
Парковка
Подземная
Расположение
Россия, Санкт-Петербург, территория Шувалово, Береговая улица, 6
Проспект Просвещения
30 мин.
Парнас
4 мин.
Озерки
4 мин.
Удельная
7 мин.
Комендантский проспект
9 мин.
Пионерская
9 мин.
Политехническая
11 мин.
Гражданский проспект
11 мин.
Ипотечный калькулятор
Заполните 1 анкету — получите предложения от десятков банков на специальных условиях
Программа ипотеки
Стоимость жилья, ₽
Первый взнос, ₽
Срок кредита
от 5.75%
Ставка
от 167 296 ₽
Платеж в месяц
Расчёт носит информационный характер и не является публичной офертой
Похожие объекты







4-комн. квартира, 103,9 м², 2/23 эт.
Парнас
15 мин.










4-комн. квартира, 95,6 м², 11/23 эт.
Парнас
10 мин.




4-комн. квартира, 84,2 м², 4/25 эт.










4-комн. квартира, 92,4 м², 17/23 эт.
Парнас
9 мин.
Консультант по новостройкам
26 592 500 ₽
289 742 ₽/м²












