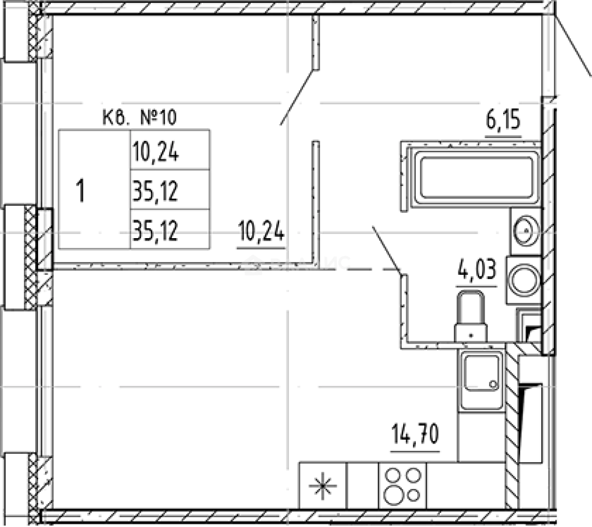
Продается 1-комн. квартира, 35.12 м²
Россия, Санкт-Петербург, жилой комплекс Плюс Пулковский
Звёздная
15 мин.
35.12 м²
Общая площадь
10.24 м²
Жилая площадь
14.7 м²
Площадь кухни
2 из 5
Этаж
Описание
Территория комплекса благоустроена для удобства жильцов - с безопасным пешеходным бульваром и безбарьерным доступом. Расположенный в районе с развитой инфраструктурой, «PLUS Пулковский» создан для комфортной жизни.
О квартире
Общая площадь
35.12 м²
Жилая площадь
10.24 м²
Площадь кухни
14.7 м²
Площадь комнат
10.24 м²
Высота потолков
2.7 м
Этаж
2
Окна выходят
На улицу
О доме
Год постройки
2025
Этажность
5
Материал постройки
Кирпично-монолитный
Материал перекрытий
Монолитные
Отопление
Центральное
Парковка
Наземная
Расположение
Россия, Санкт-Петербург, жилой комплекс Плюс Пулковский
Звёздная
15 мин.
Купчино
15 мин.
Шушары
17 мин.
Проспект Ветеранов
17 мин.
Московская
17 мин.
Ленинский проспект
18 мин.
Дунайская
18 мин.
Проспект Славы
20 мин.
Ипотечный калькулятор
Заполните 1 анкету — получите предложения от десятков банков на специальных условиях
Программа ипотеки
Стоимость жилья, ₽
Первый взнос, ₽
Срок кредита
от 5.75%
Ставка
от 46 494 ₽
Платеж в месяц
Расчёт носит информационный характер и не является публичной офертой
Похожие объекты






1-комн. квартира, 36,0 м², 5/5 эт.
Звёздная
15 мин.






1-комн. квартира, 36,1 м², 5/5 эт.
Звёздная
15 мин.






1-комн. квартира, 34,9 м², 1/5 эт.
Звёздная
15 мин.











1-комн. квартира, 38,5 м², 3/5 эт.
Звёздная
15 мин.
Консультант по новостройкам
7 390 382 ₽
210 433 ₽/м²






