Продается 5-комн. квартира, 146.8 м²
Россия, Санкт-Петербург, Петровский проспект, 9к2
Крестовский остров
15 мин.
146.8 м²
Общая площадь
91.1 м²
Жилая площадь
21.1 м²
Площадь кухни
7 из 9
Этаж
Описание
В жилом комплексе предложены однокомнатные, двух- и трехкомнатные квартиры. В них предусмотрены просторные коридоры и увеличенные размеры совмещенных кухонь-гостиных, имеются отдельные помещения для гардеробных. Квартиры сдаются без отделки, с высотой потолков до 3,2 метров, увеличенными и панорамными окнами.
Территория жилого комплекса «Министр» закрыта и благоустроена. Спроектированы детские и спортивные площадки, места для отдыха. На 1 этаже расположены коммерческие помещения, на подземном этаже – кладовые. Для владельцев автомобилей предусмотрен подземный паркинг.
Жилой комплекс расположен на Выборгской набережной, у слияния двух петербургских водных артерий – Черной речки и Большой Невки, у Головинского моста. В пешей доступности расположены Головинский и Литовский сады, сад Александа Матросова, Строгановский парк. Рядом расположены школы и детские сады, университеты, поликлиники, кафе и рестораны, магазины и спортивные центры. До метро «Черная речка» можно добраться за 15 минут пешком.
О квартире
Общая площадь
146.8 м²
Жилая площадь
91.1 м²
Площадь кухни
21.1 м²
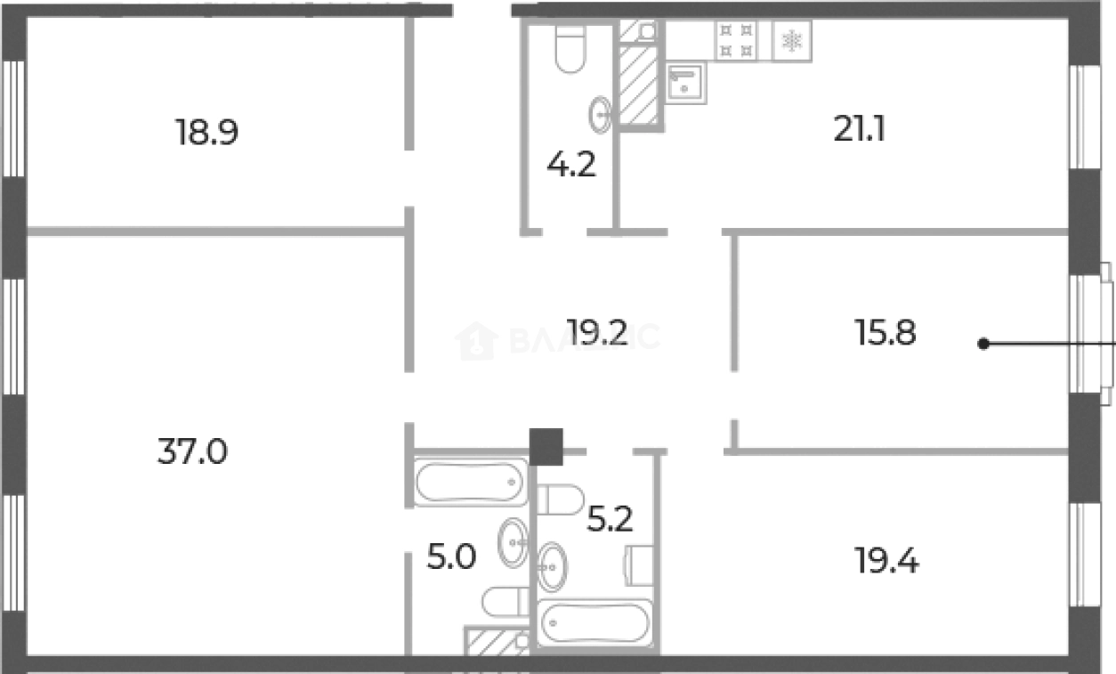
Площадь комнат
37+18.9+19.4+15.8 м²
Высота потолков
3 м
Этаж
7
Окна выходят
На улицу
О доме
Год постройки
2024
Этажность
9
Материал постройки
Монолитный
Материал перекрытий
Монолитные
Отопление
Центральное
Парковка
Подземная
Расположение
Россия, Санкт-Петербург, Петровский проспект, 9к2
Крестовский остров
15 мин.
Чкаловская
17 мин.
Спортивная
21 мин.
Василеостровская
27 мин.
Приморская
28 мин.
Петроградская
4 мин.
Горьковская
4 мин.
Старая Деревня
5 мин.
Ипотечный калькулятор
Заполните 1 анкету — получите предложения от десятков банков на специальных условиях
Программа ипотеки
Стоимость жилья, ₽
Первый взнос, ₽
Срок кредита
от 5.75%
Ставка
от 452 068 ₽
Платеж в месяц
Расчёт носит информационный характер и не является публичной офертой
Похожие объекты






4-комн. квартира, 140,7 м², 4/7 эт.
Василеостровская
7 мин.









Свободная планировка, 146,9 м², 1/6 эт.
Василеостровская
6 мин.






3-комн. квартира, 126,0 м², 5/8 эт.
Петроградская
6 мин.








Свободная планировка, 142,8 м², 1/6 эт.
Василеостровская
6 мин.
Консультант по новостройкам
71 858 600 ₽
489 500 ₽/м²







