Продается 1-комн. квартира, 35.09 м²
Россия, Санкт-Петербург, 10-я Советская улица, 27
Площадь Восстания
17 мин.
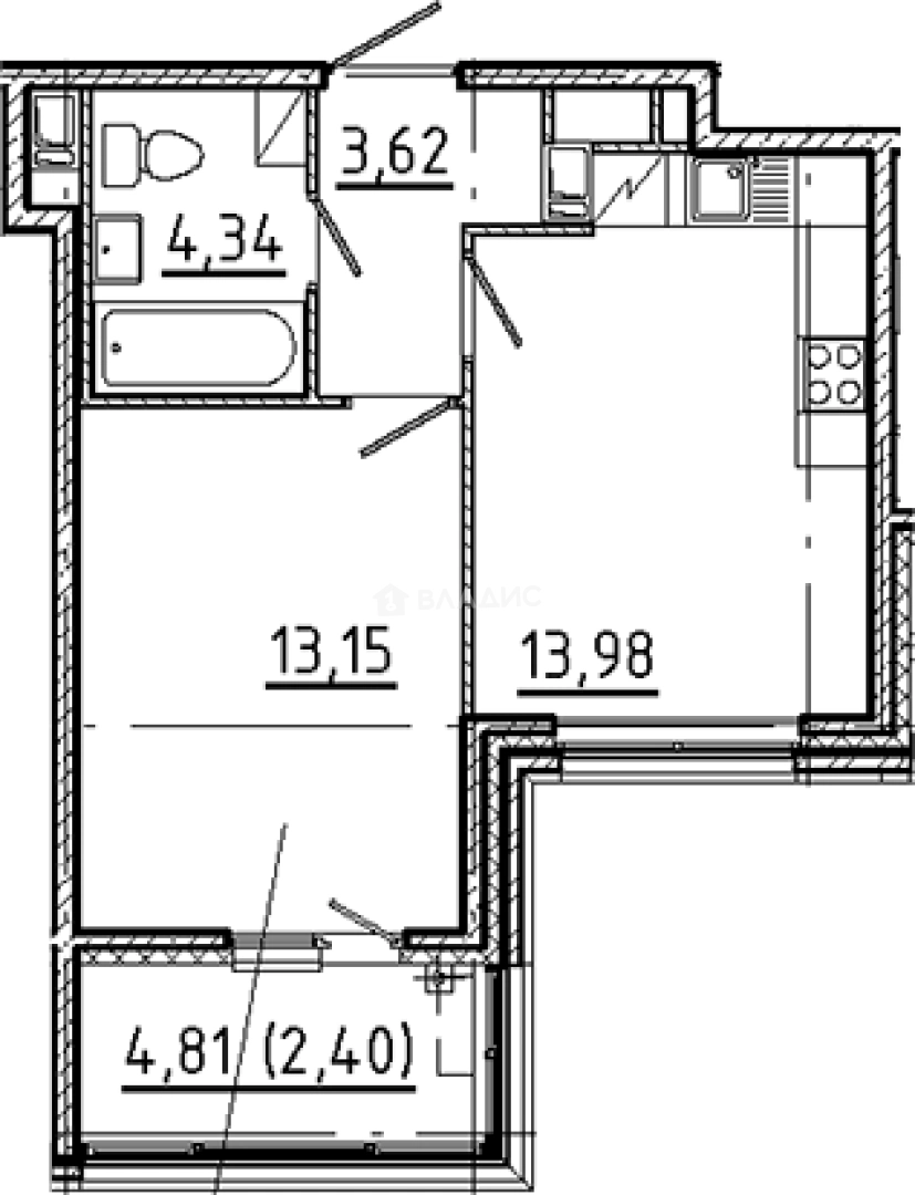
35.09 м²
Общая площадь
13.15 м²
Жилая площадь
13.98 м²
Площадь кухни
3 из 10
Этаж
Описание
В клубном доме представлена 281 квартира с множеством планировочных решений: в наличии двухуровневые квартиры, квартиры с террасами и окнами в ванной. Сдаются они без отделки, высотой потолков до 3,32 метров и панорамным остеклением.
Территория клубного дома закрыта и огорожена, имеется контроль доступа и видеонаблюдение. Территория озеленена, спроектированы детские площадки, зоны отдыха и барбекю, спортивная площадка для workout, зона для выгула собак. Для владельцев автомобилей предусмотрен подземный паркинг с доступом из лифта.
Проект находится в историческом районе Пески. Рядом расположены кафе, магазины, аптеки, спортивные клубы, школы и детские сады, медицинские учреждения. В пешей доступности находятся Невская Ратуша, Таврический сад, Смольный собор. До метро «Площадь Александра Невского» и «Площадь Восстания» можно добраться за 15 минут пешком.
О квартире
Общая площадь
35.09 м²
Жилая площадь
13.15 м²
Площадь кухни
13.98 м²
Площадь комнат
13.15 м²
Высота потолков
2.74 м
Этаж
3
Окна выходят
На улицу
О доме
Год постройки
2027
Этажность
10
Материал постройки
Монолитный
Парковка
Подземная
Расположение
Россия, Санкт-Петербург, 10-я Советская улица, 27
Площадь Восстания
17 мин.
Новочеркасская
21 мин.
Маяковская
21 мин.
Чернышевская
21 мин.
Владимирская
27 мин.
Достоевская
28 мин.
Ипотечный калькулятор
Заполните 1 анкету — получите предложения от десятков банков на специальных условиях
Программа ипотеки
Стоимость жилья, ₽
Первый взнос, ₽
Срок кредита
от 5.75%
Ставка
от 127 164 ₽
Платеж в месяц
Расчёт носит информационный характер и не является публичной офертой
Похожие объекты







2-комн. квартира, 36,7 м², 5/10 эт.
Площадь Восстания
17 мин.







1-комн. квартира, 35,1 м², 8/10 эт.
Площадь Восстания
17 мин.






2-комн. квартира, 37,0 м², 5/10 эт.
Площадь Восстания
17 мин.






2-комн. квартира, 37,0 м², 4/10 эт.
Площадь Восстания
17 мин.
Консультант по новостройкам
20 213 390 ₽
576 045 ₽/м²















