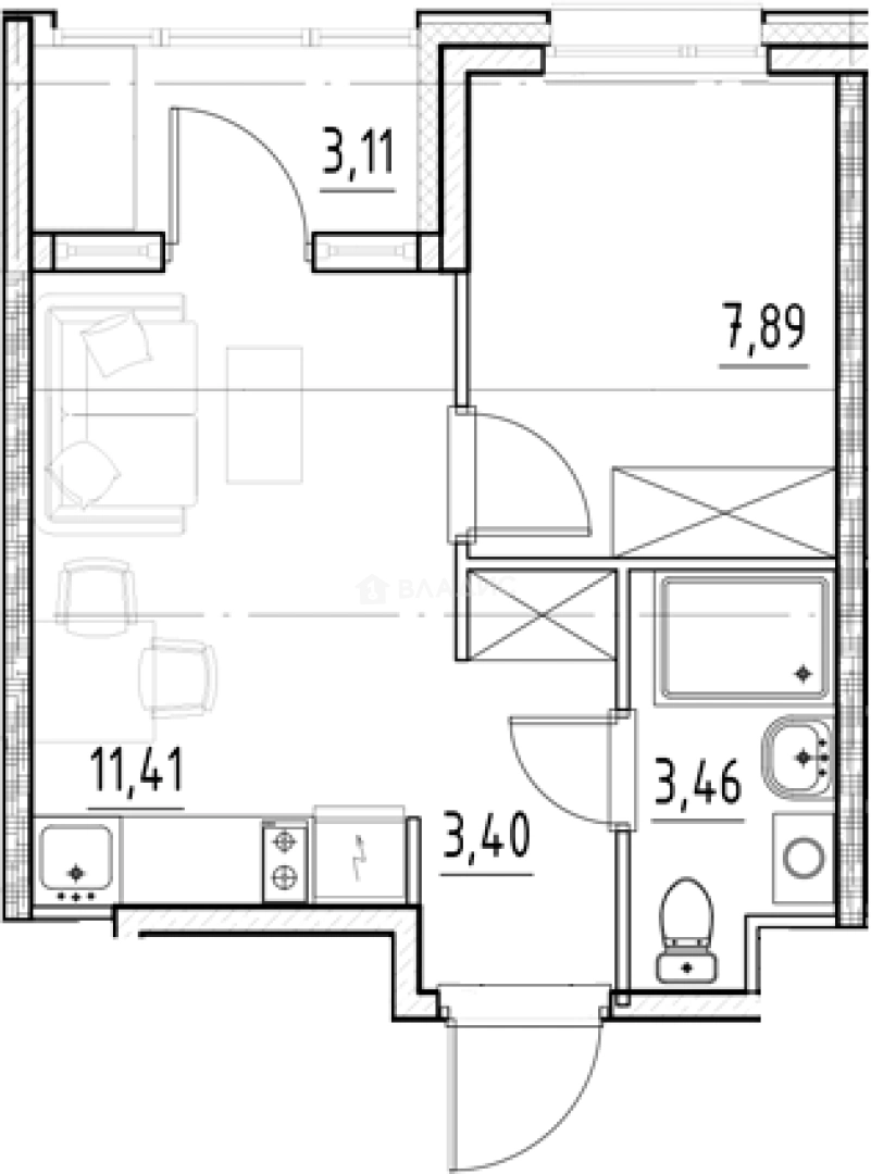
Продается 1-комн. квартира, 26.16 м²
Россия, Санкт-Петербург, Фрунзенский район, муниципальный округ Волковское
Бухарестская
9 мин.
26.16 м²
Общая площадь
7.89 м²
Жилая площадь
11.41 м²
Площадь кухни
2 из 13
Этаж
Описание
В жилом комплексе предложено множество планировочных решений: в наличии квартиры, как классического типа, так и европланировки. Сдаются они с подчистовой или чистовой отделкой, стандартными окнами и высотой потолков до 2,89 метров.
Внутренняя инфраструктура жилого комплекса ориентирована на обеспечение комфортного проживания жильцов. На закрытой территории комплекса ведется круглосуточное видеонаблюдение, организован двор парк. На первых этажах расположены коммерческие помещения. Для владельцев автомобилей предусмотрен отдельный многоуровневый паркинг.
Жилой комплекс расположен в отдалении от промышленных предприятий. В пешей доступности продуктовые магазины, школа, детский сад, университет, колледж, а также остановки общественного транспорта. До выезда на КАД 15 минут транспортом. Станция метро «Бухарестская» в 10 минутах пешком.
О квартире
Общая площадь
26.16 м²
Жилая площадь
7.89 м²
Площадь кухни
11.41 м²
Площадь комнат
7.89 м²
Высота потолков
2.74 м
Этаж
2
Окна выходят
На улицу
О доме
Год постройки
2028
Этажность
13
Материал постройки
Монолитный
Материал перекрытий
Монолитные
Отопление
Центральное
Парковка
Многоуровневая
Расположение
Россия, Санкт-Петербург, Фрунзенский район, муниципальный округ Волковское
Бухарестская
9 мин.
Международная
15 мин.
Волковская
26 мин.
Проспект Славы
4 мин.
Елизаровская
4 мин.
Ломоносовская
5 мин.
Электросила
5 мин.
Парк Победы
5 мин.
Ипотечный калькулятор
Заполните 1 анкету — получите предложения от десятков банков на специальных условиях
Программа ипотеки
Стоимость жилья, ₽
Первый взнос, ₽
Срок кредита
от 5.75%
Ставка
от 56 933 ₽
Платеж в месяц
Расчёт носит информационный характер и не является публичной офертой
Похожие объекты





Студия, 26,4 м², 3/16 эт.
Московские ворота
3 мин.





Студия, 26,7 м², 11/16 эт.
Московские ворота
3 мин.





Студия, 26,4 м², 3/16 эт.
Московские ворота
3 мин.





Студия, 26,7 м², 13/16 эт.
Московские ворота
3 мин.
Консультант по новостройкам
9 049 725 ₽
345 938 ₽/м²












