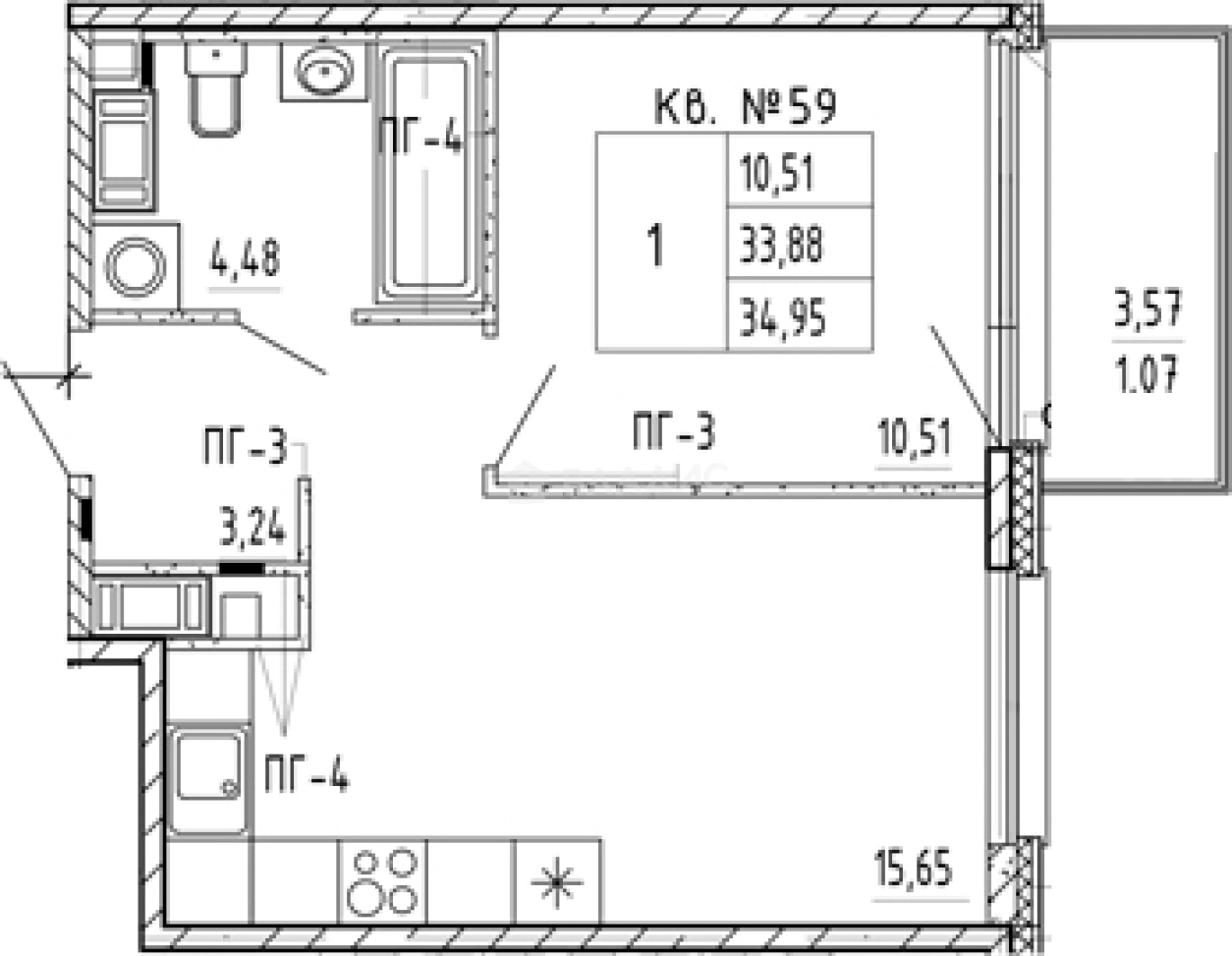
Продается 1-комн. квартира, 33.88 м²
Россия, Санкт-Петербург, жилой комплекс Плюс Пулковский
Звёздная
15 мин.
33.88 м²
Общая площадь
10.51 м²
Жилая площадь
15.65 м²
Площадь кухни
5 из 5
Этаж
Описание
В проекте представлено множество планировочных решений. Все лоты сдаются с чистовой отделкой на выбор, высотой потолков до 3,5 метров, увеличенными окнами. На первых этажах располагаются квартиры с патио.
Территория благоустроена: имеется пешеходный бульвар, не пересекающийся с проезжей частью, организована безбарьерная среда для легкого доступа в комплекс.
Проект расположен в районе с хорошо развитой инфраструктурой, в пешей доступности имеется все необходимое — продовольственные магазины, медицинские и образовательные учреждения, аптеки, рестораны и кафе.
О квартире
Общая площадь
33.88 м²
Жилая площадь
10.51 м²
Площадь кухни
15.65 м²
Площадь комнат
10.51 м²
Высота потолков
2.9 м
Этаж
5
Окна выходят
На улицу
О доме
Год постройки
2026
Этажность
5
Материал постройки
Кирпично-монолитный
Отопление
Центральное
Парковка
Наземная
Расположение
Россия, Санкт-Петербург, жилой комплекс Плюс Пулковский
Звёздная
15 мин.
Купчино
15 мин.
Шушары
17 мин.
Проспект Ветеранов
17 мин.
Московская
17 мин.
Ленинский проспект
18 мин.
Дунайская
18 мин.
Проспект Славы
20 мин.
Ипотечный калькулятор
Заполните 1 анкету — получите предложения от десятков банков на специальных условиях
Программа ипотеки
Стоимость жилья, ₽
Первый взнос, ₽
Срок кредита
от 5.75%
Ставка
от 49 934 ₽
Платеж в месяц
Расчёт носит информационный характер и не является публичной офертой
Похожие объекты






1-комн. квартира, 36,0 м², 5/5 эт.
Звёздная
15 мин.






1-комн. квартира, 36,1 м², 5/5 эт.
Звёздная
15 мин.






1-комн. квартира, 34,9 м², 1/5 эт.
Звёздная
15 мин.











1-комн. квартира, 38,5 м², 3/5 эт.
Звёздная
15 мин.
Консультант по новостройкам
7 937 145 ₽
234 273 ₽/м²











