Продается 4-комн. квартира, 87.89 м²
Россия, Санкт-Петербург, Зеленогорск, Кривоносовская улица, 57
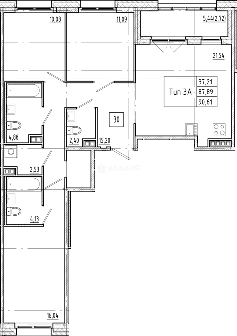
87.89 м²
Общая площадь
37.21 м²
Жилая площадь
21.54 м²
Площадь кухни
4 из 4
Этаж
Описание
В проекте представлены авторские функциональные планировки от 1-комнатных до 3-комнатных квартир с просторными кухнями и ванными комнатами с окнами, гардеробными. Имеются двухуровневые квартиры с 5-метровыми окнами и квартиры со вторым светом, а на 1-м этаже расположены сити-виллы с отдельным входом, патио и палисадником. Сдаются они с отделкой White box, высотой потолков от 3 метров и увеличенными окнами.
Благоустройство проекта разработано ландшафтной студией L.BURO. На закрытой от автомобилей территории расположены 3 прогулочные аллеи, амфитеатр, коворкинг под открытым небом, места отдыха, детские площадками, зона очага, сады скульптур и пряных трав, павильон барбекю, водный арт-объект. Для занятий спортом спроектированы стритбол, воркаут-площадка, тренажеры, а также теннисный корт на крыше паркинга. Во дворе комплекса ведется круглосуточная система видеонаблюдения, доступ осуществляется через лобби. В жилом комплексе спроектирован собственный детский сад и начальная школа. Для автовладельцев автомобилей предусмотрен отдельный отапливаемый многоуровневый паркинг с круглосуточным видеонаблюдением с возможностью установить персональную зарядную станцию для электромобилей.
Жилой комплекс расположен в экологически чистом районе – в г. Зеленогорске. Рядом расположены магазины, аптеки, спортзалы, кафе. В транспортной доступности расположены заповедные зоны, такие как Озеро Щучье, Болото Ламмин-Суо, природный ландшафт Хаапала, Линдуловская роща, Комаровский берег. До Финского залива можно добраться на автомобиле за 10 минут, до ЗСД – 20 минут, до метро «Беговая» – 50 минут.
О квартире
Общая площадь
87.89 м²
Жилая площадь
37.21 м²
Площадь кухни
21.54 м²
Площадь комнат
10.08+11.09+16.04 м²
Высота потолков
3 м
Этаж
4
Окна выходят
На улицу
О доме
Год постройки
2026
Этажность
4
Материал постройки
Кирпично-монолитный
Материал перекрытий
Монолитные
Отопление
Центральное
Парковка
Многоуровневая
Расположение
Россия, Санкт-Петербург, Зеленогорск, Кривоносовская улица, 57
Ипотечный калькулятор
Заполните 1 анкету — получите предложения от десятков банков на специальных условиях
Программа ипотеки
Стоимость жилья, ₽
Первый взнос, ₽
Срок кредита
от 5.75%
Ставка
от 247 965 ₽
Платеж в месяц
Расчёт носит информационный характер и не является публичной офертой
Похожие объекты






4-комн. квартира, 89,1 м², 2/4 эт.





4-комн. квартира, 89,1 м², 2/4 эт.
Консультант по новостройкам
39 415 350 ₽
448 463 ₽/м²

















