Продается 3-комн. квартира, 57.67 м²
Россия, Санкт-Петербург, Кушелевка
Лесная
11 мин.
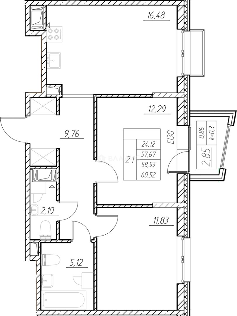
57.67 м²
Общая площадь
24.12 м²
Жилая площадь
16.48 м²
Площадь кухни
4 из 13
Этаж
Описание
Вся территория квартала продумана до мелочей для комфортной жизни: пейзажный композиции, площадки для детей и прогулок с колясками, зоны для отдыха и занятий спортом. На стилобатах 1 и 4 корпусов предусмотрены террасы с лаунж зоной и рабочим пространством. В пространстве квартала будут построены школа и детский сад.
В ЖК "RESPECT" предусмотрены собственная газовая котельная и подземный паркинг для автолюбителей.
О квартире
Общая площадь
57.67 м²
Жилая площадь
24.12 м²
Площадь кухни
16.48 м²
Площадь комнат
11.83+12.29 м²
Высота потолков
2.7 м
Этаж
4
Окна выходят
На улицу
О доме
Год постройки
2026
Этажность
13
Материал постройки
Монолитный
Материал перекрытий
Монолитные
Отопление
Своя котельная
Парковка
Подземная
Расположение
Россия, Санкт-Петербург, Кушелевка
Лесная
11 мин.
Площадь Мужества
16 мин.
Выборгская
25 мин.
Политехническая
29 мин.
Чёрная речка
5 мин.
Академическая
5 мин.
Петроградская
5 мин.
Площадь Ленина
5 мин.
Ипотечный калькулятор
Заполните 1 анкету — получите предложения от десятков банков на специальных условиях
Программа ипотеки
Стоимость жилья, ₽
Первый взнос, ₽
Срок кредита
от 5.75%
Ставка
от 131 874 ₽
Платеж в месяц
Расчёт носит информационный характер и не является публичной офертой
Похожие объекты







3-комн. квартира, 61,8 м², 3/18 эт.
Выборгская
28 мин.






3-комн. квартира, 58,1 м², 6/6 эт.
Пионерская
20 мин.









2-комн. квартира, 62,9 м², 1/6 эт.
Политехническая
14 мин.







3-комн. квартира, 60,4 м², 4/18 эт.
Выборгская
29 мин.
Консультант по новостройкам
20 962 058 ₽
363 483 ₽/м²












