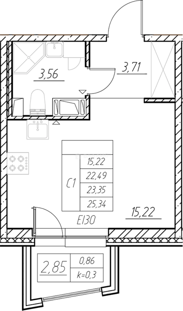
Продается Студия, 22.49 м²
Россия, Санкт-Петербург, Кушелевка
Лесная
11 мин.
22.49 м²
Общая площадь
15.22 м²
Жилая площадь
13 из 13
Этаж
Описание
Вся территория квартала продумана до мелочей для комфортной жизни: пейзажный композиции, площадки для детей и прогулок с колясками, зоны для отдыха и занятий спортом. На стилобатах 1 и 4 корпусов предусмотрены террасы с лаунж зоной и рабочим пространством. В пространстве квартала будут построены школа и детский сад.
В ЖК "RESPECT" предусмотрены собственная газовая котельная и подземный паркинг для автолюбителей.
О квартире
Общая площадь
22.49 м²
Жилая площадь
15.22 м²
Площадь комнат
15.22 м²
Высота потолков
2.7 м
Этаж
13
Окна выходят
На улицу
О доме
Год постройки
2026
Этажность
13
Материал постройки
Монолитный
Материал перекрытий
Монолитные
Отопление
Своя котельная
Парковка
Подземная
Расположение
Россия, Санкт-Петербург, Кушелевка
Лесная
11 мин.
Площадь Мужества
16 мин.
Выборгская
25 мин.
Политехническая
29 мин.
Чёрная речка
5 мин.
Академическая
5 мин.
Петроградская
5 мин.
Площадь Ленина
5 мин.
Ипотечный калькулятор
Заполните 1 анкету — получите предложения от десятков банков на специальных условиях
Программа ипотеки
Стоимость жилья, ₽
Первый взнос, ₽
Срок кредита
от 5.75%
Ставка
от 67 945 ₽
Платеж в месяц
Расчёт носит информационный характер и не является публичной офертой
Консультант по новостройкам
10 800 209 ₽
480 223 ₽/м²




























