Продается Студия, 22.6 м²
Россия, Санкт-Петербург, Московское шоссе, 13ЖЗ
Звёздная
6 мин.
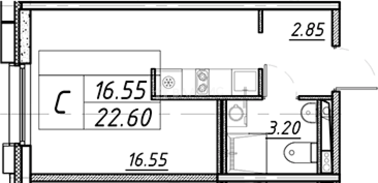
22.6 м²
Общая площадь
16.55 м²
Жилая площадь
4 из 16
Этаж
Описание
В проекте представлены студии и 1-комнатные апартаменты. Все лоты сдаются с чистовой отделкой, высотой потолков 2,7 метра и стандартными окнами.
Территория апарт-отеля благоустроена — имеется ресторан, салон красоты, SPA зона, спортивный зал, мини-маркет, магазин цветов, коворкинг, отдельная переговорная комната. Для автовладельцев предусмотрен подземный паркинг на 105 мест. На территории предоставляется сервис 4-х звездочного отеля: круглосуточная служба заселения, места для хранения багажа, консьерж-сервис, аренда автомобилей. В качестве управляющей компании полного цикла выступит «МТЛ. Управление недвижимостью».
Апарт-отель расположен в районе с хорошо развитой инфраструктурой. В пешей доступности имеется все необходимое — продовольственные магазины, образовательные и медицинские учреждения, кафе и рестораны. Станция метро «Звездная» находится в 10 минутах пешком, до аэропорта «Пулково» дорога займет 15 минут на автомобиле.
О квартире
Общая площадь
22.6 м²
Жилая площадь
16.55 м²
Площадь комнат
16.55 м²
Высота потолков
2.7 м
Этаж
4
Окна выходят
На улицу
О доме
Год постройки
2026
Этажность
16
Материал постройки
Монолитный
Парковка
Подземная
Расположение
Россия, Санкт-Петербург, Московское шоссе, 13ЖЗ
Звёздная
6 мин.
Купчино
21 мин.
Московская
4 мин.
Дунайская
6 мин.
Проспект Славы
6 мин.
Парк Победы
6 мин.
Ленинский проспект
7 мин.
Международная
7 мин.
Ипотечный калькулятор
Заполните 1 анкету — получите предложения от десятков банков на специальных условиях
Программа ипотеки
Стоимость жилья, ₽
Первый взнос, ₽
Срок кредита
от 5.75%
Ставка
от 54 056 ₽
Платеж в месяц
Расчёт носит информационный характер и не является публичной офертой
Похожие объекты






Студия, 23,5 м², 4/17 эт.
Звёздная
10 мин.




Студия, 22,2 м², 6/22 эт.
Московская
13 мин.






Студия, 23,3 м², 5/17 эт.
Звёздная
10 мин.
Консультант по новостройкам
8 592 390 ₽
380 195 ₽/м²





















