Продается 3-комн. квартира, 88.51 м²
Россия, Санкт-Петербург, Пушкин, Гражданская улица, 9с1
Шушары
16 мин.
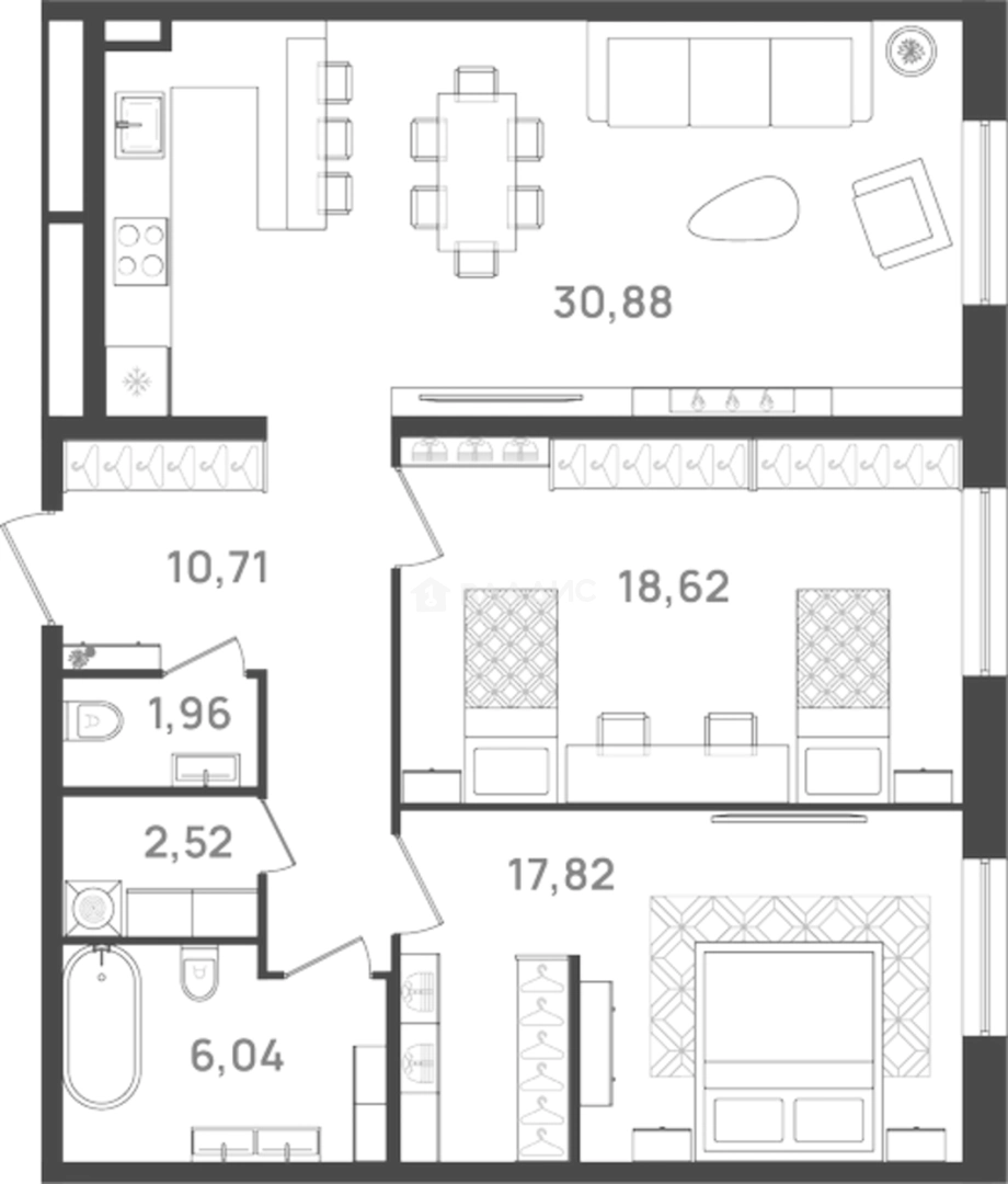
88.51 м²
Общая площадь
36.44 м²
Жилая площадь
30.88 м²
Площадь кухни
1 из 3
Этаж
Описание
В проекте предложено 76 квартир от однокомнатных до трехкомнатных. Сдаются они без отделки, высотой потолков до 3.8 метров и панорамными окнами.
Территория комплекса благоустроена: выполнено ландшафтное озеленение, спроектированы детские и игровые площадки, зоны для отдыха и прогулок. Безопасность обеспечивает закрытая территория с пунктом охраны и консьерж-сервис. На территории имеется собственный детский сад с бассейном. Для владельцев автомобилей предусмотрен подземный паркинг с веломестами и кладовыми.
Проект расположен в историческом центре – г. Пушкин. В районе развитая инфраструктура: рядом находятся, магазины и кафе, аптеки и медицинские центры, спортивные комплексы, школы. В пешей доступности расположено множество парков, скверов и прудов. До Санкт-Петербурга можно добраться за 20 минут на автомобиле.
О квартире
Общая площадь
88.51 м²
Жилая площадь
36.44 м²
Площадь кухни
30.88 м²
Площадь комнат
18.62+17.82 м²
Высота потолков
3 м
Этаж
1
Окна выходят
На улицу
О доме
Год постройки
2025
Этажность
3
Материал постройки
Монолитный
Материал перекрытий
Монолитные
Отопление
Центральное
Парковка
Подземная
Расположение
Россия, Санкт-Петербург, Пушкин, Гражданская улица, 9с1
Шушары
16 мин.
Купчино
18 мин.
Звёздная
19 мин.
Дунайская
19 мин.
Рыбацкое
19 мин.
Обухово
21 мин.
Московская
22 мин.
Проспект Славы
22 мин.
Ипотечный калькулятор
Заполните 1 анкету — получите предложения от десятков банков на специальных условиях
Программа ипотеки
Стоимость жилья, ₽
Первый взнос, ₽
Срок кредита
от 5.75%
Ставка
от 195 556 ₽
Платеж в месяц
Расчёт носит информационный характер и не является публичной офертой
Похожие объекты




3-комн. квартира, 88,6 м², 1/3 эт.
Шушары
16 мин.




3-комн. квартира, 88,5 м², 1/3 эт.
Шушары
16 мин.





3-комн. квартира, 86,7 м², 2/3 эт.
Шушары
16 мин.




3-комн. квартира, 86,7 м², 2/3 эт.
Шушары
16 мин.
Консультант по новостройкам
31 084 712 ₽
351 200 ₽/м²






